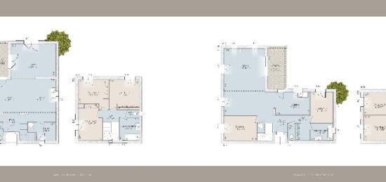
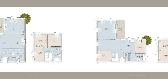
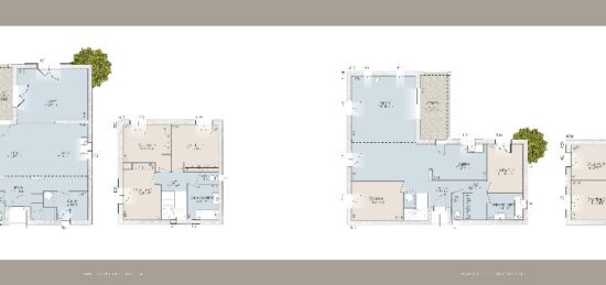
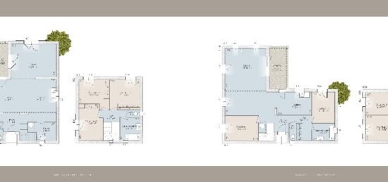
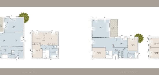
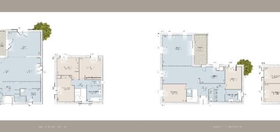
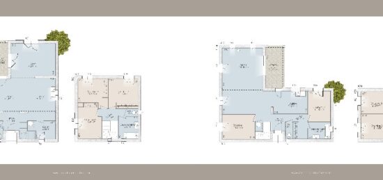
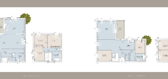
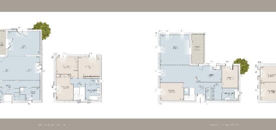
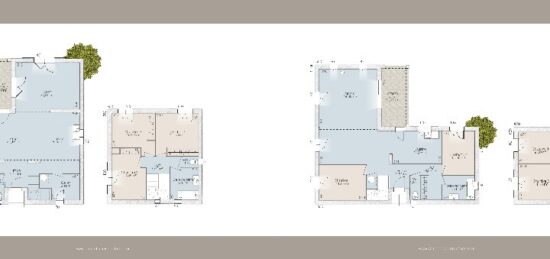
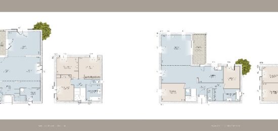
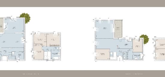
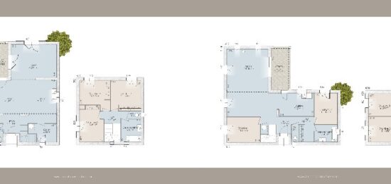
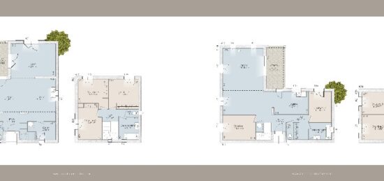
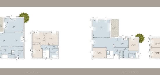
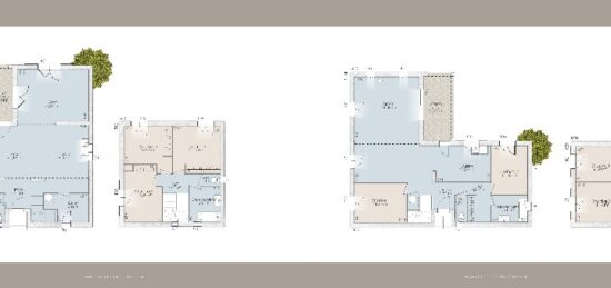
250 Nos Maisons neuves à vendre

Azur et Constructions vous présente des annonces de maison type, modulable selon vos envies et selon l’emprise au sol spécifique à chaque terrain en vente.

Nos annonces sont renouvelées quotidiennement permettant ainsi de vous offrir le meilleur des terrains à vendre, en collaboration avec nos partenaires fonciers.

Vous pouvez recevoir nos nouvelles annonces dans votre secteur de recherche en vous inscrivant à l’alerte mails.

Trouver un
Terrain + maison

250 annonces identifiées

Type de bien

Type de bien

Emplacement

Où construire ma maison

Dans tous nos secteurs

Caractéristiques

Caractéristiques du bien

Nombre de chambres

Plusieurs choix possibles

Nombre de pièces

Plusieurs choix possibles

Surface

Surface habitable

m2
m2
Prix

Prix