Maison neuve à
Jouques
(13490) Référence :
AA2447151_1
Prix du projet : Maison avec Terrain
prix 309 890 €
- 3 pièces
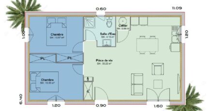
- 2 chambres
- Surface maison 59 m2
Jouques : maison T3 (59 m²) en vente
EMPLACEMENT PRIVILÉGIÉ - MAISON 3 PIÈCES NEUVE
En vente : à 45 km de la côte méditerranéenne et à deux pas d'Aix-en-Provence, découvrez cette maison de 3 pièces de plain-pied de 59 m² bénéficiant d'un emplacement d'exception dans Jouques (13490). Conçue de plain-pied, elle compte deux chambres, une cuisine et une salle de bains.
Le terrain de la maison s'étend sur 804 m².
La maison est neuve.
Cette propriété se situe dans un secteur attractif. L'École Maternelle Gare et l'École Élémentaire République sont implantées à moins de 10 minutes à pied. Côté transports, on trouve la gare Meyrargues à moins de 10 minutes en voiture. Les autoroutes A51 et A8 et la nationale N296 sont accessibles à moins de 18 km. Il y a un tennis, des commerces, des boulangeries, une épicerie, deux boucheries-charcuteries et un bureau de poste à proximité du bien. Ne manquez pas le marché Place des Anciens Comb tous les dimanches matin.
Son prix de vente est de 309 890 €.
N'hésitez pas à prendre contact avec Anthony ANGELI (tél : 06-18-28-79-40) pour toute question sur la maison, sur les modalités de vente ou sur les démarches à suivre.
Mentions légales
Terrain proposé par un partenaire foncier selon disponibilités et autorisation de publicité au prix de 185 000 €. Hors droit d'enregistrement et frais de notaire. Terrain + Maison proposés au prix de 309 890 € (Hors branchements et raccordements, papiers peints, peintures, revêtement de sol dans les chambres. Tarif modifiable sans préavis). Etiquette énergie : A. Différents modèles disponibles pour ce terrain. Assurances et garanties du constructeur (RC professionnelle, décennale, dommage ouvrage, garantie de remboursement de l'acompte, livraison à prix et délai convenu) : https://www.azur-et-constructions.com/mentions-legales/.Agence Azur & Constructions de Cabriès (13480)
- Téléphone :
- 04 42 49 27 77
- Adressse :
- Expobat Villa n°13
13480 Cabriès, France
