Maison neuve à
Fontvieille
(13990) Référence :
AA2316295_1
Prix du projet : Maison avec Terrain
prix 450 000 €
- 4 pièces
- 3 chambres
- Surface maison 100 m2
Villa Provençale d'Exception à Fontvieille - Par Azur et Constructions
Découvrez le raffinement et l'authenticité d'une villa provençale nichée au coeur d'un lotissement haut de gamme et sécurisé à Fontvieille. Conçue par Azur et Constructions, cette demeure conjugue charme traditionnel et prestations haut de gamme, dans un cadre paisible et préservé.
Un écrin de sérénité et d'élégance
Idéalement située dans un environnement calme et verdoyant, cette villa incarne l'art de vivre en Provence. Ses façades, ses volets en bois et son toit en tuiles lui confèrent une allure intemporelle, parfaitement intégrée au paysage des Alpilles.
Ce projet d'exception allie confort, élégance et modernité, offrant un cadre de vie unique en Provence. Un bien rare, conçu pour une clientèle exigeante en quête de prestige et de quiétude.
Terrain vu avec notre partenaire foncier
Le prix ne comporte pas les frais de notaire ni d'éventuelles adaptations au sol.
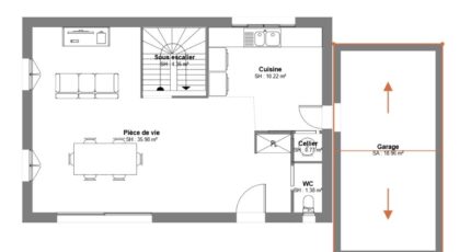
VENTE : maison de 4 pièces (100 m²) à Fontvieille
EMPLACEMENT PRIVILÉGIÉ - MAISON 4 PIÈCES NEUVE
À 17 km de la côte méditerranéenne et à deux pas d'Avignon, à vendre bénéficiant d'un emplacement d'exception dans Fontvieille (13990), Azur & Constructions Cabriès vous propose cette maison de 4 pièces de 100 m² et de 600 m² de terrain avec vue sur jardin.
Il s'agit d'une maison de 2 niveaux. Elle compte trois chambres, une cuisine et une salle de bains. Cette maison est neuve.
Cette maison se situe dans un quartier convoité. Il y a l'École Élémentaire Yvan Audouard à moins de 10 minutes à pied. Côté transports, on trouve la gare Arles à moins de 10 minutes en voiture. Les nationales N113 et N572 sont accessibles à moins de 10 km. Il y a un bassin de natation, trois boulangeries, des commerces, un supermarché, une supérette et un bureau de poste dans les environs. Enfin, le marché Allée des Pins anime le quartier.
Elle est proposée à l'achat pour 450 000 €.
N'hésitez pas à prendre contact avec notre agence (ANGELI Anthony : 06-18-
Mentions légales
Terrain proposé par un partenaire foncier selon disponibilités et autorisation de publicité au prix de €. Hors droit d'enregistrement et frais de notaire. Maison proposée, avec un contrat de construction de maison individuelle, dans le cadre de la loi du 19/12/1990, au prix de 450 000 € (Hors branchements et raccordements, papiers peints, peintures, revêtement de sol dans les chambres, qui sont chiffrés dans les travaux qui restent à charge du client. Tarif modifiable sans préavis). Étiquette énergie : A. Différents modèles disponibles pour ce terrain. Assurances et garanties du constructeur comprises (RC professionnelle, décennale, dommage ouvrage).Agence Azur & Constructions de Cabriès (13480)
- Téléphone :
- 04 42 49 27 77
- Adressse :
- Expobat Villa n°13
13480 Cabriès, France
