Maison neuve à
Volx
(04130) Référence :
DD2390309_1
Prix du projet : Maison avec Terrain
prix 206 200 €
- 3 pièces
- 2 chambres
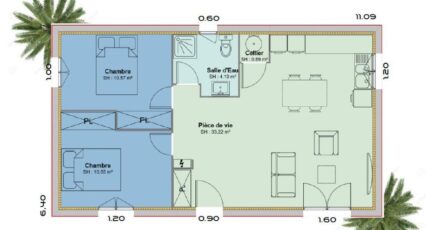
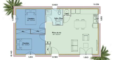
- Surface maison 60 m2
VENTE d'une maison T3 (60 m²) à Volx
MAISON 3 PIÈCES NEUVE
À vendre : Azur & Constructions vous présente cette maison de 3 pièces de plain-pied de 60 m² et de 332 m² de terrain à Volx (04130). Conçue de plain-pied, elle propose deux chambres, une cuisine et une salle de bains.
Cette maison est neuve.
Il y a le Collège André Ailhaud à moins de 10 minutes à pied. Niveau transports, on trouve les gares Manosque-Gréoux-les-Bains et La Brillanne-Oraison à moins de 10 minutes en voiture. L'autoroute A51 est accessible à 7 km. Il y a une bibliothèque, un tennis et trois commerces dans les environs.
Elle est à vendre pour la somme de 206 200 €. (Terrain, frais de notaire, raccordements et maison compris).
Contactez Daniel DEROCH (tél : 06-09-96-38-36) pour toute question sur le bien.
Mentions légales
Terrain proposé par un partenaire foncier selon disponibilités et autorisation de publicité au prix de 85 000 €. Hors droit d'enregistrement et frais de notaire. Terrain + Maison proposés au prix de 121 200 € (Hors branchements et raccordements, papiers peints, peintures, revêtement de sol dans les chambres. Tarif modifiable sans préavis). Etiquette énergie : A. Différents modèles disponibles pour ce terrain. Assurances et garanties du constructeur (RC professionnelle, décennale, dommage ouvrage, garantie de remboursement de l'acompte, livraison à prix et délai convenu) : https://www.azur-et-constructions.com/mentions-legales/.Agence Azur & Constructions de Salon-de-Provence (13300)
- Téléphone :
- 04 42 49 27 77
- Adressse :
- 415 boulevard du Roy René
13300 Salon-de-Provence, France
