Maison neuve à
Villelaure
(84530) Référence :
DD2433442_1
Prix du projet : Maison avec Terrain
prix 269 800 €
- 5 pièces
- 3 chambres
- Surface maison 93 m2
Attention dernier projet disponible!!!
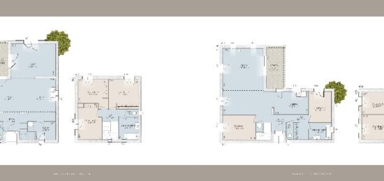
Sur un terrain idéalement situé au sein d'un environnement résidentiel à Villelaure (84530), la société Azur & Constructions (groupe HEXAOM) vous propose une maison neuve dont les principales caractéristiques sont:
-Maison neuve en R+1 de 85m² de surface intérieure
- escalier en béton carrelé
- 3 chambres
- salle d'eau entièrement équipée à l'étage (douche italienne 120*80, meuble vasque, sèche serviette électrique & wc)
- carrelage dans toute les pièces et 10 m² de faience dans la salle d'eau
- climatisation réversible dans la pièce de vie
- volets roulants électriques avec fermeture centralisée pour toutes les menuiseries
Le prix d'ensemble du projet, soit l'achat du terrain plus la construction de la maison est proposé à 269 800 €.
Une belle opportunité de construire votre maison dans un cadre paisible, tout en gardant un budget maîtrisé.
A ce prix vous bénéficierez de toutes les garanties, de la qualité et du sérieux du plus grand groupe français de construction de maisons individuelles.
Contactez-moi rapidement pour plus d'infos ou une visite.
David DESTRIAN O6 28 35 59 26
Azur & Constructions
Groupe HEXAOM
Mentions légales
Terrain proposé par un partenaire foncier selon disponibilités et autorisation de publicité au prix de 124 000 €. Hors droit d'enregistrement et frais de notaire. Terrain + Maison proposés au prix de 269 800 € (Hors branchements et raccordements, papiers peints, peintures, revêtement de sol dans les chambres. Tarif modifiable sans préavis). Etiquette énergie : A. Différents modèles disponibles pour ce terrain. Assurances et garanties du constructeur (RC professionnelle, décennale, dommage ouvrage, garantie de remboursement de l'acompte, livraison à prix et délai convenu) : https://www.azur-et-constructions.com/mentions-legales/.Agence Azur & Constructions de Salon-de-Provence (13300)
- Téléphone :
- 04 42 49 27 77
- Adressse :
- 415 boulevard du Roy René
13300 Salon-de-Provence, France
