Maison neuve à
Sénas
(13560) Référence :
AA2406035_1
Prix du projet : Maison avec Terrain
prix 268 890 €
- 4 pièces
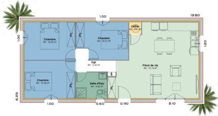
- 3 chambres
- Surface maison 71 m2
VENTE : maison T4 (71 m²) à Sénas
EMPLACEMENT PRIVILÉGIÉ - MAISON 4 PIÈCES NEUVE
En vente : à 23 km de la mer Méditerranée et à 30 km d'Avignon, nous sommes ravis de vous présenter, bénéficiant d'un emplacement privilégié dans Sénas (13560), cette maison de 4 pièces de plain-pied de 71 m².
Conçue de plain-pied, elle compte trois chambres, une cuisine et une salle de bains. Cette maison est neuve.
Le terrain du bien est de 447 m².
La maison se trouve dans un secteur recherché. L'École Primaire Jean Moulin 2 est implantée à moins de 10 minutes à pied, tout comme une structure d'accueil pour la petite enfance. Niveau transports, on trouve les gares Sénas, Lamanon et Orgon à moins de 10 minutes en voiture. L'autoroute A7 est accessible à 1 km. Il y a une bibliothèque, trois commerces et un supermarché à quelques minutes à peine.
Elle est à vendre pour la somme de 268 890 €.
N'hésitez pas à prendre contact avec notre agence (Anthony ANGELI : 06-18-28-79-40) pour obtenir de plus amples renseignements sur la maison ou sur les modalités de vente.
Mentions légales
Terrain proposé par un partenaire foncier selon disponibilités et autorisation de publicité au prix de 148 000 €. Hors droit d'enregistrement et frais de notaire. Terrain + Maison proposés au prix de 120 890 € (Hors branchements et raccordements, papiers peints, peintures, revêtement de sol dans les chambres. Tarif modifiable sans préavis). Etiquette énergie : A. Différents modèles disponibles pour ce terrain. Assurances et garanties du constructeur (RC professionnelle, décennale, dommage ouvrage, garantie de remboursement de l'acompte, livraison à prix et délai convenu) : https://www.azur-et-constructions.com/mentions-legales/.Agence Azur & Constructions de Cabriès (13480)
- Téléphone :
- 04 42 49 27 77
- Adressse :
- Expobat Villa n°13
13480 Cabriès, France
