Maison neuve à
Saint-Martin-de-Crau
(13310) Référence :
AA2342074_1
Prix du projet : Maison avec Terrain
prix 296 890 €
- 4 pièces
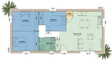
- 3 chambres
- Surface maison 71 m2
VENTE : maison de 4 pièces (71 m²) à Saint-Martin-de-Crau
EMPLACEMENT PRIVILÉGIÉ - MAISON 4 PIÈCES NEUVE
À vendre : située à 18 km de la mer Méditerranée et à 18 km d'Arles, nous sommes heureux de vous proposer, bénéficiant d'un emplacement d'exception dans Saint-Martin-de-Crau (13310), cette maison de 4 pièces de plain-pied de 71 m². Son intérieur inclut trois chambres, une cuisine et une salle de bains.
Le terrain de cette maison est de 576 m².
La maison est neuve.
Cette maison est située dans un secteur prisé. Il y a des établissements scolaires de tous types à moins de 10 minutes en voiture, tout comme trois crèches à moins de 10 minutes à pied. Côté transports, on trouve la gare Saint-Martin-de-Crau à moins de 10 minutes en voiture. L'autoroute A54 et les nationales N113 et N568 sont accessibles à moins de 10 km. Il y a quatre bibliothèques, un bassin de natation, trois tennis, des commerces, des boulangeries, trois supermarchés, des épiceries et deux bureaux de poste à proximité du bien. Enfin, le marché Centre-Ville a lieu tous les vendredis matin.
Elle est à vendre pour la somme de 296 890 €.
Prenez contact avec notre agence (ANGELI Anthony : 06-18-28-79-40) pour tout renseignement sur la maison ou sur les modalités de vente.
Mentions légales
Terrain proposé par un partenaire foncier selon disponibilités et autorisation de publicité au prix de 179 900 €. Hors droit d'enregistrement et frais de notaire. Maison proposée, avec un contrat de construction de maison individuelle, dans le cadre de la loi du 19/12/1990, au prix de 116 990 € (Hors branchements et raccordements, papiers peints, peintures, revêtement de sol dans les chambres, qui sont chiffrés dans les travaux qui restent à charge du client. Tarif modifiable sans préavis). Étiquette énergie : A. Différents modèles disponibles pour ce terrain. Assurances et garanties du constructeur comprises (RC professionnelle, décennale, dommage ouvrage).Agence Azur & Constructions de Cabriès (13480)
- Téléphone :
- 04 42 49 27 77
- Adressse :
- Expobat Villa n°13
13480 Cabriès, France
