Maison neuve à
Saint-Chamas
(13250) Référence :
LR2384717_1
Prix du projet : Maison avec Terrain
prix 424 500 €
- 5 pièces
- 4 chambres
- Surface maison 106 m2
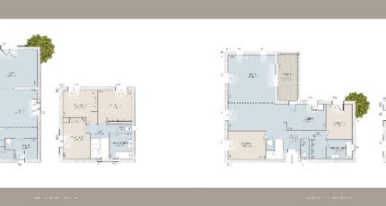
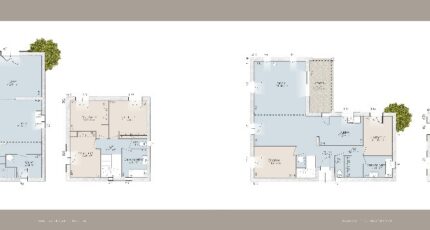
VENTE d'une maison de 5 pièces (106 m²) à Saint-Chamas
IDÉALEMENT SITUÉE - MAISON 5 PIÈCES NEUVE
En vente : à 1 km de la mer Méditerranée et à deux pas d'Aix-en-Provence, ayez le coup de coeur pour, idéalement située dans Saint-Chamas (13250), cette maison de 5 pièces de 106 m² et de 501 m² de terrain. Son intérieur offre quatre chambres, une cuisine et une salle de bains.
Cette maison possède 2 niveaux. Elle est neuve.
Cette maison est située dans un secteur recherché. Des établissements scolaires de tous niveaux sont implantés à moins de 10 minutes à pied. Côté transports en commun, il y a la gare Saint-Chamas juste à côté. L'autoroute A54 et la nationale N569 sont accessibles à moins de 9 km. On trouve des boulangeries, des commerces, un supermarché, un bureau de poste et trois boucheries-charcuteries à quelques minutes. Le marché Rue Gambetta a lieu chaque samedi matin.
Elle est proposée à l'achat pour 424 500 €.
Contactez notre agence (ROCHETTE Lucas : 06-51-63-22-66) pour obtenir de plus amples renseignements sur le bien ou sur les démarches à suivre. Faites de vos projets immobiliers une réalité avec Azur & Constructions Cabriès.
Mentions légales
Terrain proposé par un partenaire foncier selon disponibilités et autorisation de publicité au prix de 241 500 €. Hors droit d'enregistrement et frais de notaire. Terrain + Maison proposés au prix de 424 500 € (Hors branchements et raccordements, papiers peints, peintures, revêtement de sol dans les chambres. Tarif modifiable sans préavis). Etiquette énergie : A. Différents modèles disponibles pour ce terrain. Assurances et garanties du constructeur (RC professionnelle, décennale, dommage ouvrage, garantie de remboursement de l'acompte, livraison à prix et délai convenu) : https://www.azur-et-constructions.com/mentions-legales/.Agence Azur & Constructions de Cabriès (13480)
- Téléphone :
- 04 42 49 27 77
- Adressse :
- Expobat Villa n°13
13480 Cabriès, France
