Maison neuve à
Rognes
(13840) Référence :
AA2380333_1
Prix du projet : Maison avec Terrain
prix 318 890 €
- 4 pièces
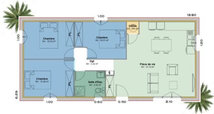
- 3 chambres
- Surface maison 71 m2
Rognes : maison de 4 pièces (71 m²) à vendre
EMPLACEMENT PRIVILÉGIÉ - MAISON 4 PIÈCES NEUVE
En vente : à 22 km de la côte méditerranéenne et à quelques kilomètres d'Aix-en-Provence, Azur & Constructions Cabriès vous propose, bénéficiant d'un emplacement d'exception dans Rognes (13840), cette maison de 4 pièces de plain-pied de 71 m² et de 334 m² de terrain. Conçue de plain-pied, elle se divise en trois chambres, une cuisine et une salle de bains.
Cette maison est neuve.
La maison se trouve dans un quartier recherché. Des écoles maternelles et élémentaires sont implantées à moins de 10 minutes à pied,, comme l'École Élémentaire Robert Verrier, tout comme une crèche. Quatre autoroutes et la nationale N296 sont accessibles à moins de 19 km. On trouve des commerces, trois boulangeries, un supermarché, une boucherie-charcuterie et une épicerie à quelques minutes.
Son prix de vente est de 318 890 €.
Contactez notre agence (Anthony ANGELI : 06-18-28-79-40) pour toute information sur la maison, sur les modalités de vente ou sur les démarches à suivre. Azur & Constructions Cabriès est là pour vous accompagner dans tous vos projets immobiliers.
Mentions légales
Terrain proposé par un partenaire foncier selon disponibilités et autorisation de publicité au prix de 199 900 €. Hors droit d'enregistrement et frais de notaire. Terrain + Maison proposés au prix de 118 990 € (Hors branchements et raccordements, papiers peints, peintures, revêtement de sol dans les chambres. Tarif modifiable sans préavis). Etiquette énergie : A. Différents modèles disponibles pour ce terrain. Assurances et garanties du constructeur (RC professionnelle, décennale, dommage ouvrage, garantie de remboursement de l'acompte, livraison à prix et délai convenu) : https://www.azur-et-constructions.com/mentions-legales/.Agence Azur & Constructions de Cabriès (13480)
- Téléphone :
- 04 42 49 27 77
- Adressse :
- Expobat Villa n°13
13480 Cabriès, France
