Maison neuve à
Port-de-Bouc
(13110) Référence :
AA2404350_1
Prix du projet : Maison avec Terrain
prix 295 890 €
- 5 pièces
- 3 chambres
- Surface maison 76 m2
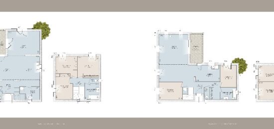
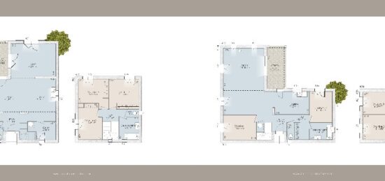
Maison de 5 pièces (76 m²) à vendre à Port-de-Bouc
QUARTIER RECHERCHÉ - MAISON 5 PIÈCES NEUVE
En vente : localisée au bord de la mer Méditerranée et à deux pas d'Arles, votre agence Azur & Constructions Cabriès est heureuse de vous proposer cette maison de 5 pièces de 76 m² située dans un quartier attractif de Port-de-Bouc (13110).
C'est une maison de 2 niveaux. Elle comporte trois chambres, une cuisine et une salle de bains. Cette maison est neuve.
Le terrain du bien s'étend sur 234 m².
La maison se trouve dans un secteur prisé. On y trouve tous les types d'écoles. Niveau transports, il y a six gares à moins de 10 minutes en voiture. L'autoroute A55 et les nationales N568 et N569 sont accessibles à moins de 7 km. On trouve une bibliothèque et deux commerces à quelques minutes à peine.
Elle est proposée à l'achat pour 295 890 €.
Contactez notre agence (ANGELI Anthony : 06-18-28-79-40) pour toute question sur la propriété. Azur & Constructions Cabriès est là pour vous accompagner dans tous vos projets immobiliers.
Mentions légales
Terrain proposé par un partenaire foncier selon disponibilités et autorisation de publicité au prix de 150 000 €. Hors droit d'enregistrement et frais de notaire. Terrain + Maison proposés au prix de 295 890 € (Hors branchements et raccordements, papiers peints, peintures, revêtement de sol dans les chambres. Tarif modifiable sans préavis). Etiquette énergie : A. Différents modèles disponibles pour ce terrain. Assurances et garanties du constructeur (RC professionnelle, décennale, dommage ouvrage, garantie de remboursement de l'acompte, livraison à prix et délai convenu) : https://www.azur-et-constructions.com/mentions-legales/.Agence Azur & Constructions de Cabriès (13480)
- Téléphone :
- 04 42 49 27 77
- Adressse :
- Expobat Villa n°13
13480 Cabriès, France
