Maison neuve à
Port-de-Bouc
(13110) Référence :
AA2404215_1
Prix du projet : Maison avec Terrain
prix 294 890 €
- 4 pièces
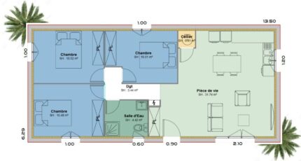
- 3 chambres
- Surface maison 71 m2
VENTE : maison de 4 pièces (71 m²) à Port-de-Bouc
EMPLACEMENT PRIVILÉGIÉ - MAISON 4 PIÈCES NEUVE
En vente : sur la côte méditerranéenne et à deux pas d'Arles, nous vous proposons cette maison de 4 pièces de plain-pied de 71 m², bénéficiant d'un emplacement privilégié dans Port-de-Bouc (13110).
Son intérieur dispose de trois chambres, d'une cuisine et d'une salle de bains. Cette maison est neuve.
Le terrain de la propriété est de 470 m².
Cette maison se trouve dans un secteur prisé. On y trouve des écoles de tous types (de la maternelle au lycée). Niveau transports, il y a six gares à moins de 10 minutes en voiture. L'autoroute A55 et les nationales N568 et N569 sont accessibles à moins de 7 km. On trouve une bibliothèque et deux commerces à proximité du bien.
Elle est proposée à l'achat pour 294 890 €.
Contactez Anthony ANGELI (06-18-28-79-40) pour tout renseignement sur le bien, sur les démarches à suivre et sur les modalités de vente.
Mentions légales
Terrain proposé par un partenaire foncier selon disponibilités et autorisation de publicité au prix de 171 360 €. Hors droit d'enregistrement et frais de notaire. Terrain + Maison proposés au prix de 123 530 € (Hors branchements et raccordements, papiers peints, peintures, revêtement de sol dans les chambres. Tarif modifiable sans préavis). Etiquette énergie : A. Différents modèles disponibles pour ce terrain. Assurances et garanties du constructeur (RC professionnelle, décennale, dommage ouvrage, garantie de remboursement de l'acompte, livraison à prix et délai convenu) : https://www.azur-et-constructions.com/mentions-legales/.Agence Azur & Constructions de Cabriès (13480)
- Téléphone :
- 04 42 49 27 77
- Adressse :
- Expobat Villa n°13
13480 Cabriès, France
