Maison neuve à
Port-de-Bouc
(13110) Référence :
AA2391421_1
Prix du projet : Maison avec Terrain
prix 307 890 €
- 4 pièces
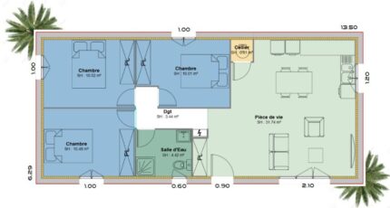
- 3 chambres
- Surface maison 71 m2
Port-de-Bouc : maison de 4 pièces (71 m²) à vendre
EMPLACEMENT PRIVILÉGIÉ - MAISON 4 PIÈCES NEUVE
Sur le littoral méditerranéen et à quelques kilomètres d'Arles, venez découvrir cette maison de 4 pièces de plain-pied de 71 m² et de 437 m² de terrain bénéficiant d'un emplacement privilégié dans Port-de-Bouc (13110). Conçue de plain-pied, elle compte trois chambres, une cuisine et une salle de bains.
Cette maison est neuve.
La maison est située dans un quartier attractif. On y trouve des établissements scolaires de tous niveaux. Niveau transports en commun, on trouve six gares à moins de 10 minutes en voiture. L'autoroute A55 et les nationales N568 et N569 sont accessibles à moins de 7 km. Il y a une bibliothèque et deux commerces à quelques minutes à peine.
Elle est proposée à l'achat pour 307 890 €.
Contactez notre agence (ANGELI Anthony : 06-18-28-79-40) pour tout renseignement sur la propriété, sur les démarches à suivre ou sur les modalités de vente. Faites de vos projets immobiliers une réalité avec Azur & Constructions Cabriès.
Mentions légales
Terrain proposé par un partenaire foncier selon disponibilités et autorisation de publicité au prix de 172 320 €. Hors droit d'enregistrement et frais de notaire. Terrain + Maison proposés au prix de 135 570 € (Hors branchements et raccordements, papiers peints, peintures, revêtement de sol dans les chambres. Tarif modifiable sans préavis). Etiquette énergie : A. Différents modèles disponibles pour ce terrain. Assurances et garanties du constructeur (RC professionnelle, décennale, dommage ouvrage, garantie de remboursement de l'acompte, livraison à prix et délai convenu) : https://www.azur-et-constructions.com/mentions-legales/.Agence Azur & Constructions de Cabriès (13480)
- Téléphone :
- 04 42 49 27 77
- Adressse :
- Expobat Villa n°13
13480 Cabriès, France
