Maison neuve à
Port-de-Bouc
(13110) Référence :
AA2347126_2
Prix du projet : Maison avec Terrain
prix 319 890 €
- 4 pièces
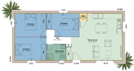
- 3 chambres
- Surface maison 71 m2
Port-de-Bouc : maison de 4 pièces (71 m²) à vendre
EMPLACEMENT PRIVILÉGIÉ - MAISON 4 PIÈCES NEUVE
À vendre : à 173 m de la côte méditerranéenne et à 31 km d'Arles, nous sommes heureux de vous proposer cette maison de 4 pièces de plain-pied de 71 m² et de 732 m² de terrain, bénéficiant d'un emplacement d'exception dans Port-de-Bouc (13110).
Conçue de plain-pied, elle dispose de trois chambres, d'une cuisine et d'une salle de bains. La maison est neuve.
La maison se situe dans un quartier attractif. On y trouve des établissements scolaires de tous niveaux. Niveau transports en commun, on trouve six gares à moins de 10 minutes en voiture. L'autoroute A55 et les nationales N568 et N569 sont accessibles à moins de 7 km. Il y a une bibliothèque et deux commerces à quelques minutes.
Elle est proposée à l'achat pour 319 890 €.
Contactez notre agence (Anthony ANGELI : 06-18-28-79-40) pour obtenir de plus amples renseignements sur la maison, sur les démarches à suivre ou sur les modalités de vente. Azur & Constructions Cabriès est là pour vous accompagner à toutes les étapes de votre projet.
Mentions légales
Terrain proposé par un partenaire foncier selon disponibilités et autorisation de publicité au prix de 191 520 €. Hors droit d'enregistrement et frais de notaire. Terrain + Maison proposés au prix de 128 370 € (Hors branchements et raccordements, papiers peints, peintures, revêtement de sol dans les chambres. Tarif modifiable sans préavis). Etiquette énergie : A. Différents modèles disponibles pour ce terrain. Assurances et garanties du constructeur (RC professionnelle, décennale, dommage ouvrage, garantie de remboursement de l'acompte, livraison à prix et délai convenu) : https://www.azur-et-constructions.com/mentions-legales/.Agence Azur & Constructions de Cabriès (13480)
- Téléphone :
- 04 42 49 27 77
- Adressse :
- Expobat Villa n°13
13480 Cabriès, France
