Maison neuve à
Peyrolles-en-Provence
(13860) Référence :
LR2374653_1
Prix du projet : Maison avec Terrain
prix 254 000 €
- 3 pièces
- 2 chambres
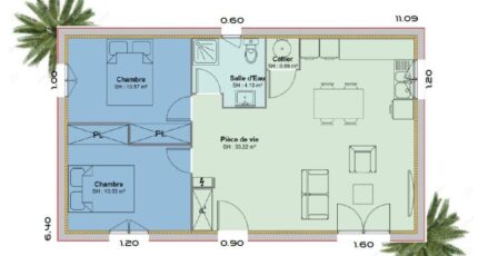
- Surface maison 59 m2
Maison T3 (59 m²) en vente à Peyrolles-en-Provence
PROCHE CENTRE-VILLE - MAISON 3 PIÈCES NEUVE
En vente : à 39 km de la côte méditerranéenne et à quelques kilomètres d'Aix-en-Provence, nous sommes ravis de vous proposer, proche du centre-ville de Peyrolles-en-Provence (13860), cette maison de 3 pièces de plain-pied de 59 m².
Elle inclut deux chambres, une cuisine et une salle de bains. Cette maison est neuve.
Le terrain de la propriété s'étend sur 282 m².
Il y a l'École Élémentaire Toussaint Barthomeuf, le Collège Jean Jaurès et l'École Maternelle Peyrolles dans la commune. Niveau transports, on trouve deux gares (Meyrargues et Pertuis) à moins de 10 minutes en voiture. L'autoroute A51 est accessible à 7 km. Il y a une bibliothèque à quelques minutes du bien.
Elle est proposée à l'achat pour 254 000 €.
Contactez Lucas ROCHETTE (tél : 06-51-63-22-66) pour toute information sur la propriété. Faites de vos projets immobiliers une réalité avec Azur & Constructions Cabriès.
Mentions légales
Terrain proposé par un partenaire foncier selon disponibilités et autorisation de publicité au prix de 150 000 €. Hors droit d'enregistrement et frais de notaire. Terrain + Maison proposés au prix de 104 000 € (Hors branchements et raccordements, papiers peints, peintures, revêtement de sol dans les chambres. Tarif modifiable sans préavis). Etiquette énergie : A. Différents modèles disponibles pour ce terrain. Assurances et garanties du constructeur (RC professionnelle, décennale, dommage ouvrage, garantie de remboursement de l'acompte, livraison à prix et délai convenu) : https://www.azur-et-constructions.com/mentions-legales/.Agence Azur & Constructions de Cabriès (13480)
- Téléphone :
- 04 42 49 27 77
- Adressse :
- Expobat Villa n°13
13480 Cabriès, France
