Maison neuve à
Peynier
(13790) Référence :
LR2395423_1
Prix du projet : Maison avec Terrain
prix 369 900 €
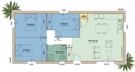
- 4 pièces
- 3 chambres
- Surface maison 71 m2
Peynier : maison F4 (71 m²) en vente
IDÉALEMENT SITUÉE - MAISON 4 PIÈCES NEUVE
À 31 km de la mer Méditerranée et à quelques kilomètres de Marseille, votre agence Azur & Constructions Cabriès est ravie de vous présenter cette maison de 4 pièces de plain-pied de 71 m² et de 582 m² de terrain en vente, idéalement située dans Peynier (13790).
Son intérieur comporte trois chambres, une cuisine et une salle de bains. Cette maison est neuve.
Cette maison se situe dans un quartier attractif. L'École Primaire Jean Jaurès et l'École Maternelle Cabaret y sont implantées. Les autoroutes A8 et A52 sont accessibles à moins de 10 km. Il y a une boulangerie et une épicerie à proximité.
Elle est à vendre pour la somme de 369 900 €.
Contactez Lucas ROCHETTE (06-51-63-22-66) pour plus de renseignements sur le bien ou sur les modalités de vente. Azur & Constructions Cabriès vous accompagne dans toutes vos démarches et à toutes les étapes de l'achat.
Mentions légales
Terrain proposé par un partenaire foncier selon disponibilités et autorisation de publicité au prix de 249 000 €. Hors droit d'enregistrement et frais de notaire. Terrain + Maison proposés au prix de 120 900 € (Hors branchements et raccordements, papiers peints, peintures, revêtement de sol dans les chambres. Tarif modifiable sans préavis). Etiquette énergie : A. Différents modèles disponibles pour ce terrain. Assurances et garanties du constructeur (RC professionnelle, décennale, dommage ouvrage, garantie de remboursement de l'acompte, livraison à prix et délai convenu) : https://www.azur-et-constructions.com/mentions-legales/.Agence Azur & Constructions de Cabriès (13480)
- Téléphone :
- 04 42 49 27 77
- Adressse :
- Expobat Villa n°13
13480 Cabriès, France
