Maison neuve à
Pélissanne
(13330) Référence :
DD2357256_1
Prix du projet : Maison avec Terrain
prix 403 400 €
- 5 pièces
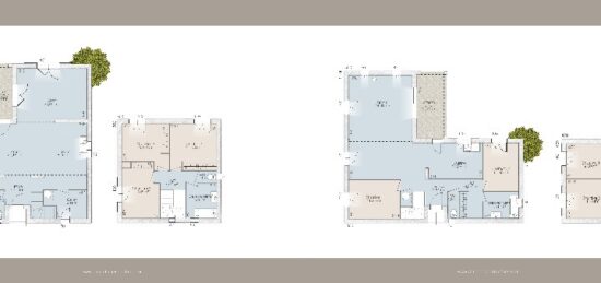
- 2 chambres
- Surface maison 76 m2
VENTE : maison de 5 pièces (76 m²) à Pélissanne
PROCHE CENTRE-VILLE - MAISON 5 PIÈCES NEUVE
En vente à 15 km de la côte méditerranéenne et à quelques kilomètres d'Aix-en-Provence, découvrez cette maison de 5 pièces de plain-pied de 80 m² proche du centre-ville de Pélissanne (13330). Son intérieur comporte deux chambres, une cuisine et une salle de bains.
Le terrain de la maison s'étend sur 408 m².
Cette maison est neuve.
Tous les types d'écoles (de la maternelle au lycée) sont implantés à moins de 10 minutes en voiture, huit crèches à moins de 10 minutes à pied, tout comme l'Ecole de l'air et de l'espace pour le supérieur. Niveau transports en commun, il y a la gare Salon-de-Provence à moins de 10 minutes en voiture. Les autoroutes A7 et A54 sont accessibles à moins de 7 km. On trouve des tennis, des bibliothèques, des bassins de natation, des commerces, des boulangeries, des supermarchés, des boucheries-charcuteries et des épiceries dans les environs. Enfin, 5 marchés animent le quartier.
Son prix de vente est de 403 400 €.(Terrain, frais de notaire et villa inclus).
N'hésitez pas à prendre contact avec notre agence (DEROCH Daniel : 06-09-96-38-36) pour plus d'informations sur la maison ou sur les démarches à suivre. Azur & Constructions Salon-de-Provence est là pour vous accompagner dans tous vos projets immobiliers.
Mentions légales
Terrain proposé par un partenaire foncier selon disponibilités et autorisation de publicité au prix de 230 000 €. Hors droit d'enregistrement et frais de notaire. Terrain + Maison proposés au prix de 173 400 € (Hors branchements et raccordements, papiers peints, peintures, revêtement de sol dans les chambres. Tarif modifiable sans préavis). Etiquette énergie : A. Différents modèles disponibles pour ce terrain. Assurances et garanties du constructeur (RC professionnelle, décennale, dommage ouvrage, garantie de remboursement de l'acompte, livraison à prix et délai convenu) : https://www.azur-et-constructions.com/mentions-legales/.Agence Azur & Constructions de Salon-de-Provence (13300)
- Téléphone :
- 04 42 49 27 77
- Adressse :
- 415 boulevard du Roy René
13300 Salon-de-Provence, France
