Maison neuve à
Oraison
(04700) Référence :
PG2419794_1
Prix du projet : Maison avec Terrain
prix 204 000 €
- 3 pièces
- 2 chambres
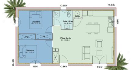
- Surface maison 59 m2
VENTE d'une maison de 3 pièces (59 m²) à Oraison
QUARTIER RECHERCHÉ - MAISON 3 PIÈCES NEUVE
À vendre dans un quartier recherché d'Oraison (04700), nous sommes heureux de vous proposer cette maison de 3 pièces de plain-pied de 59 m².
Conçue de plain-pied, elle dispose de deux chambres, d'une cuisine et d'une salle de bains. La maison est neuve.
Le terrain du bien est de 360 m².
Cette maison est située dans un secteur convoité. Trois établissements scolaires sont implantés à moins de 10 minutes à pied,, comme le Collège Docteur Jean Marc Gaspard Itard, tout comme une crèche. Côté transports, on trouve la gare La Brillanne-Oraison à moins de 10 minutes en voiture. On trouve un accès à l'autoroute A51 à 3 km. Il y a un bassin de natation, une bibliothèque, des commerces, quatre boulangeries, un supermarché, un bureau de poste et une épicerie à proximité. Le marché Centre-Ville anime le quartier tous les mardis matin.
Elle est proposée à l'achat pour 204 000 €.
Prenez contact avec notre agence (GIMENEZ Pierre : 04-42-49-27-77) pour plus d'informations sur le bien et sur les modalités de vente. Azur & Constructions Martigues vous accompagne dans toutes vos démarches et à toutes les étapes de l'achat.
Mentions légales
Terrain proposé par un partenaire foncier selon disponibilités et autorisation de publicité au prix de 100 000 €. Hors droit d'enregistrement et frais de notaire. Terrain + Maison proposés au prix de 104 000 € (Hors branchements et raccordements, papiers peints, peintures, revêtement de sol dans les chambres. Tarif modifiable sans préavis). Etiquette énergie : A. Différents modèles disponibles pour ce terrain. Assurances et garanties du constructeur (RC professionnelle, décennale, dommage ouvrage, garantie de remboursement de l'acompte, livraison à prix et délai convenu) : https://www.azur-et-constructions.com/mentions-legales/.Agence Azur & Constructions de Martigues (13500)
- Téléphone :
- 04 42 49 27 77
- Adressse :
- Allée Charles Dullin
13500 Martigues, France
