Maison neuve à
Meyreuil
(13590) Référence :
LR2384567_1
Prix du projet : Maison avec Terrain
prix 290 000 €
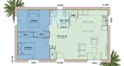
- 3 pièces
- 2 chambres
- Surface maison 59 m2
VENTE : maison T3 (59 m²) à Meyreuil
PROCHE CENTRE-VILLE - MAISON 3 PIÈCES NEUVE
À 24 km de la côte méditerranéenne et à quelques kilomètres de Marseille, venez découvrir cette maison de 3 pièces de plain-pied de 59 m² et de 238 m² de terrain proche du centre-ville de Meyreuil (13590). Elle inclut deux chambres, une cuisine et une salle de bains.
Cette maison est neuve.
Il y a des établissements scolaires maternelles et élémentaires dans la commune. Côté transports en commun, on trouve les gares Gardanne, Aix-en-Provence et Simiane-Collongue à moins de 10 minutes en voiture. Les autoroutes A8 et A51 et la nationale N296 sont accessibles à moins de 8 km. Il y a une bibliothèque et trois commerces à quelques minutes de la maison.
Elle est à vendre pour la somme de 290 000 €.
Prenez contact avec notre agence (ROCHETTE Lucas : 06-51-63-22-66) pour obtenir de plus amples renseignements sur la propriété ou sur les modalités de vente. Azur & Constructions Cabriès est là pour vous accompagner dans tous vos projets immobiliers.
Mentions légales
Terrain proposé par un partenaire foncier selon disponibilités et autorisation de publicité au prix de 159 000 €. Hors droit d'enregistrement et frais de notaire. Terrain + Maison proposés au prix de 131 000 € (Hors branchements et raccordements, papiers peints, peintures, revêtement de sol dans les chambres. Tarif modifiable sans préavis). Etiquette énergie : A. Différents modèles disponibles pour ce terrain. Assurances et garanties du constructeur (RC professionnelle, décennale, dommage ouvrage, garantie de remboursement de l'acompte, livraison à prix et délai convenu) : https://www.azur-et-constructions.com/mentions-legales/.Agence Azur & Constructions de Cabriès (13480)
- Téléphone :
- 04 42 49 27 77
- Adressse :
- Expobat Villa n°13
13480 Cabriès, France
