Maison neuve à
Meyreuil
(13590) Référence :
AA2368670_1
Prix du projet : Maison avec Terrain
prix 358 900 €
- 4 pièces
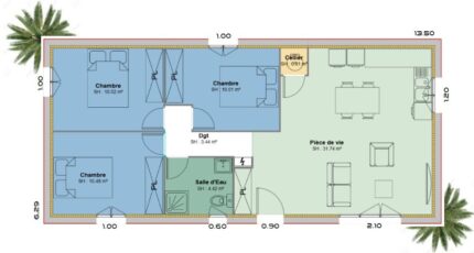
- 3 chambres
- Surface maison 71 m2
Meyreuil : maison T4 (71 m²) à vendre
EMPLACEMENT PRIVILÉGIÉ - MAISON 4 PIÈCES NEUVE
À vendre : située à 24 km de la côte méditerranéenne et à quelques kilomètres de Marseille, votre agence Azur & Constructions Cabriès est heureuse de vous présenter, bénéficiant d'un emplacement d'exception dans Meyreuil (13590), cette maison de 4 pièces de plain-pied de 71 m² et de 468 m² de terrain.
Conçue de plain-pied, elle dispose de trois chambres, d'une cuisine et d'une salle de bains. La maison est neuve.
Cette maison est située dans un secteur convoité. Des écoles maternelles et élémentaires y sont implantées. Niveau transports en commun, on trouve les gares Gardanne, Aix-en-Provence et Simiane-Collongue à moins de 10 minutes en voiture. Les autoroutes A8 et A51 et la nationale N296 sont accessibles à moins de 8 km. Il y a une bibliothèque et trois commerces à quelques minutes.
Elle est à vendre pour la somme de 358 900 €.
Prenez contact avec notre constructeur (Anthony ANGELI : 06-18-28-79-40) pour tout renseignement sur la maison, sur les modalités de vente ou sur les démarches à suivre. Donnez vie à vos projets immobiliers avec Azur & Constructions Cabriès.
Mentions légales
Terrain proposé par un partenaire foncier selon disponibilités et autorisation de publicité au prix de 230 000 €. Hors droit d'enregistrement et frais de notaire. Terrain + Maison proposés au prix de 128 900 € (Hors branchements et raccordements, papiers peints, peintures, revêtement de sol dans les chambres. Tarif modifiable sans préavis). Etiquette énergie : A. Différents modèles disponibles pour ce terrain. Assurances et garanties du constructeur (RC professionnelle, décennale, dommage ouvrage, garantie de remboursement de l'acompte, livraison à prix et délai convenu) : https://www.azur-et-constructions.com/mentions-legales/.Agence Azur & Constructions de Cabriès (13480)
- Téléphone :
- 04 42 49 27 77
- Adressse :
- Expobat Villa n°13
13480 Cabriès, France
