Maison neuve à
Meyreuil
(13590) Référence :
AA2351626_1
Prix du projet : Maison avec Terrain
prix 268 900 €
- 3 pièces
- 2 chambres
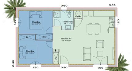
- Surface maison 59 m2
VENTE : maison de 3 pièces (59 m²) à Meyreuil
EMPLACEMENT PRIVILÉGIÉ - MAISON 3 PIÈCES NEUVE
En vente à 24 km de la mer Méditerranée et à 23 km de Marseille, Azur & Constructions Cabriès vous propose cette maison de 3 pièces de plain-pied de 59 m² bénéficiant d'un emplacement d'exception dans Meyreuil (13590). Son intérieur comporte deux chambres, une cuisine et une salle de bains.
Le terrain du bien est de 317 m².
La maison est neuve.
Cette maison se situe dans un quartier prisé. Des écoles maternelles et élémentaires y sont implantées. Niveau transports, on trouve trois gares (Gardanne, Aix-en-Provence et Simiane-Collongue) à moins de 10 minutes en voiture. Les autoroutes A8 et A51 et la nationale N296 sont accessibles à moins de 8 km. Il y a une bibliothèque et trois commerces dans les environs.
Son prix de vente est de 268 900 €.
Prenez contact avec notre agence (ANGELI Anthony : 06-18-28-79-40) pour obtenir de plus amples informations sur la maison, sur les démarches à suivre ou sur les modalités de vente.
Mentions légales
Terrain proposé par un partenaire foncier selon disponibilités et autorisation de publicité au prix de 155 000 €. Hors droit d'enregistrement et frais de notaire. Maison proposée, avec un contrat de construction de maison individuelle, dans le cadre de la loi du 19/12/1990, au prix de 113 900 € (Hors branchements et raccordements, papiers peints, peintures, revêtement de sol dans les chambres, qui sont chiffrés dans les travaux qui restent à charge du client. Tarif modifiable sans préavis). Étiquette énergie : A. Différents modèles disponibles pour ce terrain. Assurances et garanties du constructeur comprises (RC professionnelle, décennale, dommage ouvrage).Agence Azur & Constructions de Cabriès (13480)
- Téléphone :
- 04 42 49 27 77
- Adressse :
- Expobat Villa n°13
13480 Cabriès, France
