Maison neuve à
Marignane
(13700) Référence :
PG2331830_2
Prix du projet : Maison avec Terrain
prix 285 000 €
- 3 pièces
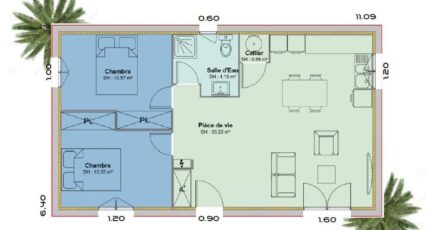
- 2 chambres
- Surface maison 59 m2
VENTE : maison F3 (59 m²) à Marignane
QUARTIER RECHERCHÉ - MAISON 3 PIÈCES NEUVE
À vendre : sur le littoral méditerranéen, construite dans un quartier attractif de Marignane (13700), Azur & Constructions Martigues vous propose cette maison de 3 pièces de plain-pied de 59 m².
Son intérieur propose deux chambres, une cuisine et une salle de bains. La maison est neuve.
Le terrain de la propriété est de 230 m².
Cette maison se trouve dans un secteur recherché. Il y a plusieurs écoles (maternelle, élémentaire et lycée) à moins de 10 minutes à pied, tout comme une structure d'accueil pour les tout-petits. Côté transports en commun, on trouve six gares à moins de 10 minutes en voiture. Quatre autoroutes sont accessibles à moins de 8 km. Il y a une bibliothèque, deux bassins de natation, deux tennis, des commerces, des boulangeries, deux supérettes, des boucheries-charcuteries et un bureau de poste à quelques minutes à peine. Le marché Centre-Ville anime le quartier.
Elle est proposée à l'achat pour 285 000 €.HORS FRAIS DE NOTAIRE
Prenez contact avec Pierre GIMENEZ (O616823612) pour toute information sur le bien et sur les démarches à suivre.
Mentions légales
Terrain proposé par un partenaire foncier selon disponibilités et autorisation de publicité au prix de 180 000 €. Hors droit d'enregistrement et frais de notaire. Maison proposée, avec un contrat de construction de maison individuelle, dans le cadre de la loi du 19/12/1990, au prix de 105 000 € (Hors branchements et raccordements, papiers peints, peintures, revêtement de sol dans les chambres, qui sont chiffrés dans les travaux qui restent à charge du client. Tarif modifiable sans préavis). Étiquette énergie : A. Différents modèles disponibles pour ce terrain. Assurances et garanties du constructeur comprises (RC professionnelle, décennale, dommage ouvrage).Agence Azur & Constructions de Martigues (13500)
- Téléphone :
- 04 42 49 27 77
- Adressse :
- Allée Charles Dullin
13500 Martigues, France
