Maison neuve à
Marignane
(13700) Référence :
PG2331830_1
Prix du projet : Maison avec Terrain
prix 298 000 €
- 4 pièces
- 3 chambres
- Surface maison 71 m2
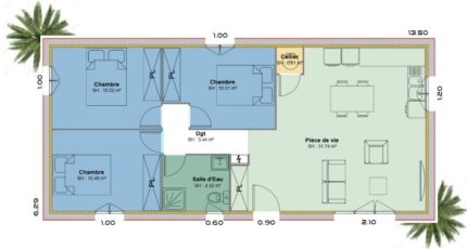
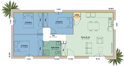
VENTE d'une maison F4 (71 m²) à Marignane
QUARTIER RECHERCHÉ - MAISON 4 PIÈCES NEUVE
À vendre : localisée sur le littoral méditerranéen, nichée dans un quartier attractif de Marignane (13700), notre agence Azur & Constructions Martigues est heureuse de vous proposer cette maison de 4 pièces de plain-pied de 71 m². Elle inclut trois chambres, une cuisine et une salle de bains.
Le terrain de cette maison est de 230 m².
La maison est neuve.
Ce bien est situé dans un secteur convoité. Plusieurs établissements scolaires (maternelle, élémentaire et lycée) sont implantés à moins de 10 minutes à pied, tout comme une crèche. Niveau transports, il y a six gares à moins de 10 minutes en voiture. Quatre autoroutes sont accessibles à moins de 8 km. On trouve une bibliothèque, deux bassins de natation, deux tennis, des commerces, des boulangeries, deux supérettes, un bureau de poste et des épiceries dans les environs. Le marché Centre-Ville anime le quartier.
Il est à vendre pour la somme de 298 000 €.HORS FRAIS DE NOTAIRE
Contactez Pierre GIMENEZ (O616823612 pour plus de renseignements sur la maison et sur les modalités de vente. Azur & Constructions Martigues est là pour vous accompagner à toutes les étapes de votre projet.
Mentions légales
Terrain proposé par un partenaire foncier selon disponibilités et autorisation de publicité au prix de 180 000 €. Hors droit d'enregistrement et frais de notaire. Maison proposée, avec un contrat de construction de maison individuelle, dans le cadre de la loi du 19/12/1990, au prix de 118 000 € (Hors branchements et raccordements, papiers peints, peintures, revêtement de sol dans les chambres, qui sont chiffrés dans les travaux qui restent à charge du client. Tarif modifiable sans préavis). Étiquette énergie : A. Différents modèles disponibles pour ce terrain. Assurances et garanties du constructeur comprises (RC professionnelle, décennale, dommage ouvrage).Agence Azur & Constructions de Martigues (13500)
- Téléphone :
- 04 42 49 27 77
- Adressse :
- Allée Charles Dullin
13500 Martigues, France
