Maison neuve à
Les Pennes-Mirabeau
(13170) Référence :
LR2393421_1
Prix du projet : Maison avec Terrain
prix 383 900 €
- 4 pièces
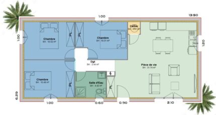
- 3 chambres
- Surface maison 71 m2
Les Pennes-Mirabeau : maison F4 (71 m²) à vendre
IDÉALEMENT SITUÉE - MAISON 4 PIÈCES NEUVE
À vendre : localisée à 5 km de la côte méditerranéenne, venez découvrir cette maison de 4 pièces de plain-pied de 71 m², idéalement située dans Les Pennes-Mirabeau (13170).
Son intérieur dispose de trois chambres, d'une cuisine et d'une salle de bains. La maison est neuve.
Le terrain de la propriété est de 612 m².
La maison est située dans un secteur prisé. On trouve des écoles primaires à moins de 10 minutes à pied. Niveau transports en commun, il y a 11 gares à moins de 10 minutes en voiture. On trouve un accès à l'autoroute A7 à 1 km. On trouve un tennis, une bibliothèque, un bassin de natation, trois boulangeries, des commerces, une épicerie, deux poissonneries et deux boucheries-charcuteries à proximité.
Elle est à vendre pour la somme de 383 900 €.
Prenez contact avec Lucas ROCHETTE (06-51-63-22-66) pour toute question sur le bien ou sur les modalités de vente.
Mentions légales
Terrain proposé par un partenaire foncier selon disponibilités et autorisation de publicité au prix de 265 000 €. Hors droit d'enregistrement et frais de notaire. Terrain + Maison proposés au prix de 118 900 € (Hors branchements et raccordements, papiers peints, peintures, revêtement de sol dans les chambres. Tarif modifiable sans préavis). Etiquette énergie : A. Différents modèles disponibles pour ce terrain. Assurances et garanties du constructeur (RC professionnelle, décennale, dommage ouvrage, garantie de remboursement de l'acompte, livraison à prix et délai convenu) : https://www.azur-et-constructions.com/mentions-legales/.Agence Azur & Constructions de Cabriès (13480)
- Téléphone :
- 04 42 49 27 77
- Adressse :
- Expobat Villa n°13
13480 Cabriès, France
