Maison neuve à
Les Pennes-Mirabeau
(13170) Référence :
AA2347129_1
Prix du projet : Maison avec Terrain
prix 395 890 €
- 4 pièces
- 3 chambres
- Surface maison 71 m2
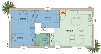
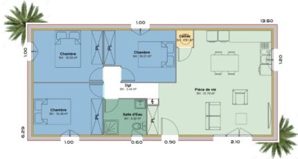
Maison de 4 pièces (71 m²) à vendre aux Pennes-Mirabeau
EMPLACEMENT PRIVILÉGIÉ - MAISON 4 PIÈCES NEUVE
À vendre : située sur la côte méditerranéenne, notre agence Azur & Constructions Cabriès est heureuse de vous proposer cette maison de 4 pièces de plain-pied de 71 m², bénéficiant d'un emplacement privilégié dans Les Pennes-Mirabeau (13170). Son intérieur comporte trois chambres, une cuisine et une salle de bains.
Le terrain de cette maison est de 640 m².
Cette maison est neuve.
La maison se situe dans un quartier prisé. On trouve des établissements scolaires primaires à moins de 10 minutes à pied. Niveau transports, il y a 11 gares à moins de 10 minutes en voiture. Il y a un accès à l'autoroute A7 à 1 km. On trouve un tennis, une bibliothèque, un bassin de natation, trois boulangeries, des commerces, deux poissonneries, une épicerie et deux boucheries-charcuteries à proximité.
Elle est proposée à l'achat pour 395 890 €.
Contactez notre constructeur (ANGELI Anthony : 06-18-28-79-40) pour obtenir de plus amples renseignements sur la propriété ou sur les modalités de vente.
Mentions légales
Terrain proposé par un partenaire foncier selon disponibilités et autorisation de publicité au prix de 259 900 €. Hors droit d'enregistrement et frais de notaire. Maison proposée, avec un contrat de construction de maison individuelle, dans le cadre de la loi du 19/12/1990, au prix de 135 990 € (Hors branchements et raccordements, papiers peints, peintures, revêtement de sol dans les chambres, qui sont chiffrés dans les travaux qui restent à charge du client. Tarif modifiable sans préavis). Étiquette énergie : A. Différents modèles disponibles pour ce terrain. Assurances et garanties du constructeur comprises (RC professionnelle, décennale, dommage ouvrage).Agence Azur & Constructions de Cabriès (13480)
- Téléphone :
- 04 42 49 27 77
- Adressse :
- Expobat Villa n°13
13480 Cabriès, France
