Maison neuve à
Aix-en-Provence
(13090) Référence :
AA2368679_1
Prix du projet : Maison avec Terrain
prix 905 890 €
- 5 pièces
- 4 chambres
- Surface maison 130 m2
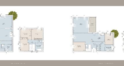
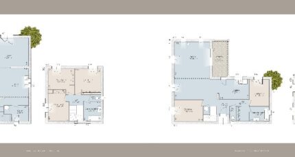
VENTE d'une maison F5 (130 m²) aux Milles
EMPLACEMENT PRIVILÉGIÉ - MAISON 5 PIÈCES NEUVE
À vendre : située à 17 km de la mer Méditerranée, nous sommes ravis de vous proposer cette maison de 5 pièces de 130 m² bénéficiant d'un emplacement d'exception dans Les Milles (13290).
Cette maison comporte 2 niveaux. Son intérieur est composé de quatre chambres, d'une cuisine et d'une salle de bains. Cette maison est neuve.
Le terrain du bien s'étend sur 1 200 m².
La maison se situe dans un quartier convoité. Il y a plusieurs écoles (maternelle, élémentaire, primaire et collège) à moins de 10 minutes à pied, tout comme une crèche. Niveau transports en commun, on trouve quatre gares à moins de 10 minutes en voiture. Les autoroutes A51, A8 et A515 et la nationale N296 sont accessibles à moins de 9 km. Il y a deux tennis, un bassin de natation, des commerces, quatre boulangeries, une boucherie-charcuterie, une épicerie et un bureau de poste à proximité de la maison.
Elle est à vendre pour la somme de 905 890 €.
Contactez notre agence (Anthony ANGELI : 06-18-28-79-40) pour obtenir de plus amples informations sur la maison ou sur les démarches à suivre. Azur & Constructions Cabriès vous accompagne à toutes les étapes de l'achat et dans tous vos projets immobiliers.
Mentions légales
Terrain proposé par un partenaire foncier selon disponibilités et autorisation de publicité au prix de 550 000 €. Hors droit d'enregistrement et frais de notaire. Terrain + Maison proposés au prix de 355 890 € (Hors branchements et raccordements, papiers peints, peintures, revêtement de sol dans les chambres. Tarif modifiable sans préavis). Etiquette énergie : A. Différents modèles disponibles pour ce terrain. Assurances et garanties du constructeur (RC professionnelle, décennale, dommage ouvrage, garantie de remboursement de l'acompte, livraison à prix et délai convenu) : https://www.azur-et-constructions.com/mentions-legales/.Agence Azur & Constructions de Cabriès (13480)
- Téléphone :
- 04 42 49 27 77
- Adressse :
- Expobat Villa n°13
13480 Cabriès, France
