Maison neuve à
Les Mées
(04190) Référence :
DD2320282_1
Prix du projet : Maison avec Terrain
prix 205 000 €
- 4 pièces
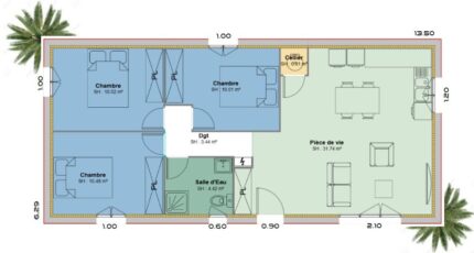
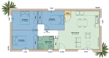
- 3 chambres
- Surface maison 71 m2
VENTE d'une maison F4 (71 m²) aux Mées
MAISON 4 PIÈCES NEUVE
Azur & Constructions Manosque vous propose cette maison de 4 pièces de plain-pied de 71 m² à vendre aux Mées (04190).
Conçue de plain-pied, elle offre trois chambres, une cuisine et une salle de bains. Cette maison est neuve.
Le terrain du bien est de 406 m².
Il y a quatre établissements scolaires à moins de 10 minutes en voiture et trois structures d'accueil pour les tout-petits à moins de 10 minutes à pied. Niveau transports en commun, on trouve les gares La Brillanne-Oraison et Château-Arnoux-Saint-Auban à moins de 10 minutes en voiture. L'autoroute A51 est accessible à 6 km. Il y a trois bibliothèques, des tennis, des bassins de natation, des commerces, des boulangeries, quatre supermarchés, des épiceries et des boucheries-charcuteries à proximité. 2 marchés animent les environs.
Elle est à vendre pour la somme de 205 000 €.
Contactez notre agence (DEROCH Daniel : 06-09-96-38-36) pour toute information sur cette maison. Concrétisez vos projets immobiliers avec Azur & Constructions Manosque.
Mentions légales
Terrain proposé par un partenaire foncier selon disponibilités et autorisation de publicité au prix de 69 000 €. Hors droit d'enregistrement et frais de notaire. Maison proposée, avec un contrat de construction de maison individuelle, dans le cadre de la loi du 19/12/1990, au prix de 136 000 € (Hors branchements et raccordements, papiers peints, peintures, revêtement de sol dans les chambres, qui sont chiffrés dans les travaux qui restent à charge du client. Tarif modifiable sans préavis). Étiquette énergie : A. Différents modèles disponibles pour ce terrain. Assurances et garanties du constructeur comprises (RC professionnelle, décennale, dommage ouvrage).Agence Azur & Constructions de Manosque (04100)
- Téléphone :
- 04 42 49 27 77
- Adressse :
- Actiplus
04100 Manosque, France
