Maison neuve à
La Bastide-des-Jourdans
(84240) Référence :
DD2363883_1
Prix du projet : Maison avec Terrain
prix 279 900 €
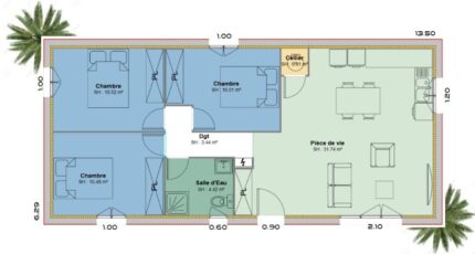
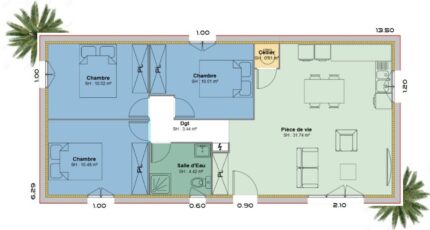
- 4 pièces
- 3 chambres
- Surface maison 71 m2
Maison de 4 pièces (71 m²) en vente à La Bastide-des-Jourdans
EMPLACEMENT PRIVILÉGIÉ - MAISON 4 PIÈCES NEUVE
À vendre : nous vous présentons cette maison de 4 pièces de plain-pied de 71 m² et de 587 m² de terrain bénéficiant d'un emplacement d'exception dans La Bastide-des-Jourdans (84240). Elle propose trois chambres, une cuisine et une salle de bains.
La maison est neuve.
Cette maison est située dans un quartier convoité. L'École Primaire Edouard Arniaud est implantée à moins de 10 minutes à pied. Il y a un accès à l'autoroute A51 à 12 km. On trouve un tennis, une boulangerie, trois commerces, un bureau de poste et une épicerie à proximité.
Son prix de vente est de 279 900 €. (terrain, villa et frais de notaire compris).
Contactez notre agence (Daniel DEROCH : 06-09-96-38-36) pour obtenir de plus amples renseignements sur la maison, sur les démarches à suivre ou sur les modalités de vente. Azur & Constructions Manosque vous accompagne dans tous vos projets immobiliers et dans toutes vos démarches.
Mentions légales
Terrain proposé par un partenaire foncier selon disponibilités et autorisation de publicité au prix de 140 100 €. Hors droit d'enregistrement et frais de notaire. Terrain + Maison proposés au prix de 139 800 € (Hors branchements et raccordements, papiers peints, peintures, revêtement de sol dans les chambres. Tarif modifiable sans préavis). Etiquette énergie : A. Différents modèles disponibles pour ce terrain. Assurances et garanties du constructeur (RC professionnelle, décennale, dommage ouvrage, garantie de remboursement de l'acompte, livraison à prix et délai convenu) : https://www.azur-et-constructions.com/mentions-legales/.Agence Azur & Constructions de Salon-de-Provence (13300)
- Téléphone :
- 04 42 49 27 77
- Adressse :
- 415 boulevard du Roy René
13300 Salon-de-Provence, France
