Maison neuve à
Jouques
(13490) Référence :
AA2334621_2
Prix du projet : Maison avec Terrain
prix 298 000 €
- 3 pièces
- 2 chambres
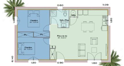
- Surface maison 59 m2
VENTE d'une maison de 3 pièces (59 m²) à Jouques
EMPLACEMENT PRIVILÉGIÉ - MAISON 3 PIÈCES NEUVE
En vente : à 45 km de la mer Méditerranée et à quelques kilomètres d'Aix-en-Provence, Azur & Constructions Cabriès vous présente cette maison de 3 pièces de plain-pied de 59 m² et de 804 m² de terrain bénéficiant d'un emplacement privilégié dans Jouques (13490).
Conçue de plain-pied, elle compte deux chambres, une cuisine et une salle de bains. La maison est neuve.
Le bien se situe dans un secteur prisé. On trouve l'École Maternelle Gare et l'École Élémentaire République à moins de 10 minutes à pied. Côté transports, il y a la gare Meyrargues à moins de 10 minutes en voiture. Les autoroutes A51 et A8 et la nationale N296 sont accessibles à moins de 18 km. On trouve un tennis, des commerces, des boulangeries, une épicerie, deux boucheries-charcuteries et un bureau de poste à quelques minutes. Le marché Place des Anciens Comb a lieu tous les dimanches matin.
Son prix de vente est de 298 000 €.
Contactez notre agence (Anthony ANGELI : 06-18-28-79-40) pour toute question sur la maison ou sur les modalités de vente. Azur & Constructions Cabriès est là pour vous accompagner à toutes les étapes de votre projet.
Mentions légales
Terrain proposé par un partenaire foncier selon disponibilités et autorisation de publicité au prix de 185 000 €. Hors droit d'enregistrement et frais de notaire. Maison proposée, avec un contrat de construction de maison individuelle, dans le cadre de la loi du 19/12/1990, au prix de 113 000 € (Hors branchements et raccordements, papiers peints, peintures, revêtement de sol dans les chambres, qui sont chiffrés dans les travaux qui restent à charge du client. Tarif modifiable sans préavis). Étiquette énergie : A. Différents modèles disponibles pour ce terrain. Assurances et garanties du constructeur comprises (RC professionnelle, décennale, dommage ouvrage).Agence Azur & Constructions de Cabriès (13480)
- Téléphone :
- 04 42 49 27 77
- Adressse :
- Expobat Villa n°13
13480 Cabriès, France
