Maison neuve à
Istres
(13800) Référence :
PG2381313_1
Prix du projet : Maison avec Terrain
prix 365 000 €
- 4 pièces
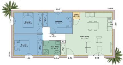
- 3 chambres
- Surface maison 71 m2
VENTE : maison F4 (71 m²) à Istres
EMPLACEMENT PRIVILÉGIÉ - MAISON 4 PIÈCES NEUVE
En vente : à 7 km de la mer Méditerranée, Azur & Constructions Martigues vous propose, bénéficiant d'un emplacement d'exception dans Istres (13800), cette maison de 4 pièces de plain-pied de 71 m² et de 950 m² de terrain.
Conçue de plain-pied, elle comporte trois chambres, une cuisine et une salle de bains. Cette maison est neuve.
Cette maison se trouve dans un secteur convoité. Des établissements scolaires de tous types y sont implantés. Côté transports, il y a quatre gares à moins de 10 minutes en voiture. Les nationales N569 et N568 sont accessibles à moins de 7 km. On trouve un tennis et un commerce à proximité de la maison.
Elle est à vendre pour la somme de 365 000 €.
Prenez contact avec Pierre GIMENEZ (tél : O616823612) pour plus de renseignements sur le bien, sur les démarches à suivre ou sur les modalités de vente. Azur & Constructions Martigues est là pour vous accompagner à toutes les étapes de votre projet.
Mentions légales
Terrain proposé par un partenaire foncier selon disponibilités et autorisation de publicité au prix de 230 000 €. Hors droit d'enregistrement et frais de notaire. Terrain + Maison proposés au prix de 135 000 € (Hors branchements et raccordements, papiers peints, peintures, revêtement de sol dans les chambres. Tarif modifiable sans préavis). Etiquette énergie : A. Différents modèles disponibles pour ce terrain. Assurances et garanties du constructeur (RC professionnelle, décennale, dommage ouvrage, garantie de remboursement de l'acompte, livraison à prix et délai convenu) : https://www.azur-et-constructions.com/mentions-legales/.Agence Azur & Constructions de Martigues (13500)
- Téléphone :
- 04 42 49 27 77
- Adressse :
- Allée Charles Dullin
13500 Martigues, France
