Maison neuve à
Istres
(13800) Référence :
AA2380335_1
Prix du projet : Maison avec Terrain
prix 398 890 €
- 5 pièces
- 3 chambres
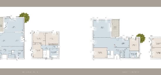
- Surface maison 92 m2
Istres : maison de 5 pièces (92 m²) en vente
EMPLACEMENT PRIVILÉGIÉ - MAISON 5 PIÈCES NEUVE
En vente : à 7 km de la mer Méditerranée, nous vous présentons cette maison de 5 pièces de 92 m² et de 479 m² de terrain bénéficiant d'un emplacement d'exception dans Istres (13800). Son intérieur comporte quatre chambres, une cuisine et une salle de bains.
Cette maison compte 2 niveaux. Elle est neuve.
La maison est située dans un secteur convoité. Des écoles de tous types y sont implantées. Niveau transports, on trouve quatre gares à moins de 10 minutes en voiture. Les nationales N569 et N568 sont accessibles à moins de 7 km. Il y a un tennis et un commerce dans les environs.
Son prix de vente est de 398 890 €.
Contactez Anthony ANGELI (tél : 06-18-28-79-40) pour plus de renseignements sur la maison, sur les modalités de vente ou sur les démarches à suivre. Azur & Constructions Cabriès est là pour vous accompagner dans tous vos projets immobiliers.
Mentions légales
Terrain proposé par un partenaire foncier selon disponibilités et autorisation de publicité au prix de 242 000 €. Hors droit d'enregistrement et frais de notaire. Terrain + Maison proposés au prix de 398 890 € (Hors branchements et raccordements, papiers peints, peintures, revêtement de sol dans les chambres. Tarif modifiable sans préavis). Etiquette énergie : A. Différents modèles disponibles pour ce terrain. Assurances et garanties du constructeur (RC professionnelle, décennale, dommage ouvrage, garantie de remboursement de l'acompte, livraison à prix et délai convenu) : https://www.azur-et-constructions.com/mentions-legales/.Agence Azur & Constructions de Cabriès (13480)
- Téléphone :
- 04 42 49 27 77
- Adressse :
- Expobat Villa n°13
13480 Cabriès, France
