Maison neuve à
Istres
(13800) Référence :
AA2380306_1
Prix du projet : Maison avec Terrain
prix 275 890 €
- 4 pièces
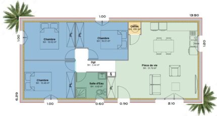
- 3 chambres
- Surface maison 71 m2
Istres : maison T4 (71 m²) en vente
EMPLACEMENT PRIVILÉGIÉ - MAISON 4 PIÈCES NEUVE
En vente à 7 km de la côte méditerranéenne, bénéficiant d'un emplacement d'exception dans Istres (13800), nous vous présentons cette maison de 4 pièces de plain-pied de 71 m² et de 311 m² de terrain.
Conçue de plain-pied, elle est composée de trois chambres, d'une cuisine et d'une salle de bains. La maison est neuve.
Cette maison est située dans un quartier prisé. On y trouve tous les types d'établissements scolaires. Niveau transports en commun, on trouve quatre gares à moins de 10 minutes en voiture. Les nationales N569 et N568 sont accessibles à moins de 7 km. Il y a un tennis et un commerce à proximité.
Elle est proposée à l'achat pour 275 890 €.
N'hésitez pas à prendre contact avec notre agence (ANGELI Anthony : 06-18-28-79-40) pour plus de renseignements sur la maison.
Mentions légales
Terrain proposé par un partenaire foncier selon disponibilités et autorisation de publicité au prix de 155 500 €. Hors droit d'enregistrement et frais de notaire. Terrain + Maison proposés au prix de 120 390 € (Hors branchements et raccordements, papiers peints, peintures, revêtement de sol dans les chambres. Tarif modifiable sans préavis). Etiquette énergie : A. Différents modèles disponibles pour ce terrain. Assurances et garanties du constructeur (RC professionnelle, décennale, dommage ouvrage, garantie de remboursement de l'acompte, livraison à prix et délai convenu) : https://www.azur-et-constructions.com/mentions-legales/.Agence Azur & Constructions de Cabriès (13480)
- Téléphone :
- 04 42 49 27 77
- Adressse :
- Expobat Villa n°13
13480 Cabriès, France
