Maison neuve à
Istres
(13800) Référence :
DD2334393_2
Prix du projet : Maison avec Terrain
prix 274 800 €
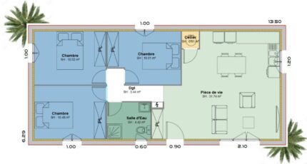
- 4 pièces
- 3 chambres
- Surface maison 71 m2
L'équilibre parfait entre cadre de vie, prix et localisation!!!
Maison neuve à construire sur un terrain de 325m² à Istres, au sein d'un trés bel environnement résidentiel.
Projet: maison T4 de plain pied + terrain de 325m² = 274 500€
Une belle opportunité de construire votre projet dans un cadre paisible, tout en gardant un budget maîtrisé.
Tout autre projet "sur mesure" peut également être étudié sur ce terrain!
Extrêmement rare à la vente dans le secteur.
Contactez-moi rapidement pour plus d'infos ou une visite.
David DESTRIAN O6 28 35 59 26
Azur & Constructions
Groupe HEXAOM
-----------------------------------------------------------
Mentions légales
Terrain proposé par un partenaire foncier selon disponibilités et autorisation de publicité au prix de 150 000 €. Hors droit d'enregistrement et frais de notaire. Maison proposée, avec un contrat de construction de maison individuelle, dans le cadre de la loi du 19/12/1990, au prix de 124 800 € (Hors branchements et raccordements, papiers peints, peintures, revêtement de sol dans les chambres, qui sont chiffrés dans les travaux qui restent à charge du client. Tarif modifiable sans préavis). Étiquette énergie : A. Différents modèles disponibles pour ce terrain. Assurances et garanties du constructeur comprises (RC professionnelle, décennale, dommage ouvrage).Agence Azur & Constructions de Salon-de-Provence (13300)
- Téléphone :
- 04 42 49 27 77
- Adressse :
- 415 boulevard du Roy René
13300 Salon-de-Provence, France
