Maison neuve à
Gémenos
(13420) Référence :
AA2336143_1
Prix du projet : Maison avec Terrain
prix 828 890 €
- 5 pièces
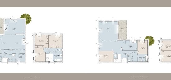
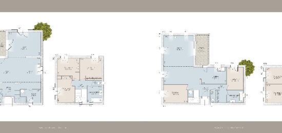
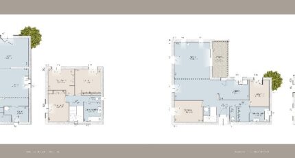
- 4 chambres
- Surface maison 130 m2
Gémenos : maison de 5 pièces (130 m²) en vente
EMPLACEMENT PRIVILÉGIÉ - MAISON 5 PIÈCES NEUVE
À 13 km de la mer Méditerranée et à 20 km de Marseille, nous vous présentons à vendre, bénéficiant d'un emplacement privilégié dans Gémenos (13420), cette maison de 5 pièces de 130 m² et de 820 m² de terrain. Son intérieur comporte quatre chambres, une cuisine et une salle de bains.
Il s'agit d'une maison de 2 niveaux. Elle est neuve.
Cette maison est située dans un secteur recherché. L'École Élémentaire Vessiot se trouve à moins de 10 minutes à pied. Côté transports en commun, il y a trois gares (Aubagne, Cassis et La Penne-sur-Huveaune) à moins de 10 minutes en voiture. Quatre autoroutes sont accessibles à moins de 5 km. On trouve une bibliothèque, des commerces, trois boulangeries, une boucherie-charcuterie, un bureau de poste et une épicerie dans les environs.
Elle est proposée à l'achat pour 828 890 €.
Prenez contact avec notre agence (Anthony ANGELI : 06-18-28-79-40) pour obtenir de plus amples informations sur la maison.
Mentions légales
Terrain proposé par un partenaire foncier selon disponibilités et autorisation de publicité au prix de 520 000 €. Hors droit d'enregistrement et frais de notaire. Maison proposée, avec un contrat de construction de maison individuelle, dans le cadre de la loi du 19/12/1990, au prix de 308 890 € (Hors branchements et raccordements, papiers peints, peintures, revêtement de sol dans les chambres, qui sont chiffrés dans les travaux qui restent à charge du client. Tarif modifiable sans préavis). Étiquette énergie : A. Différents modèles disponibles pour ce terrain. Assurances et garanties du constructeur comprises (RC professionnelle, décennale, dommage ouvrage).Agence Azur & Constructions de Cabriès (13480)
- Téléphone :
- 04 42 49 27 77
- Adressse :
- Expobat Villa n°13
13480 Cabriès, France
