Maison neuve à
Gardanne
(13120) Référence :
PG2381329_1
Prix du projet : Maison avec Terrain
prix 350 000 €
- 3 pièces
- 2 chambres
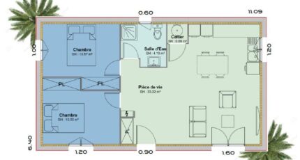
- Surface maison 59 m2
VENTE : maison T3 (59 m²) à Gardanne
IDÉALEMENT SITUÉE - MAISON 3 PIÈCES NEUVE
À vendre : à 18 km de la côte méditerranéenne, idéalement située dans Gardanne (13120), nous sommes ravis de vous présenter cette maison de 3 pièces de plain-pied de 59 m². Son intérieur propose deux chambres, une cuisine et une salle de bains.
Le terrain de la propriété est de 435 m².
La maison est neuve.
Cette propriété se situe dans un quartier attractif. On trouve des établissements scolaires (de la maternelle au lycée) à moins de 10 minutes à pied, tout comme trois structures d'accueil pour les tout-petits. Niveau transports en commun, il y a la gare Gardanne dans les environs. Les autoroutes A51, A8 et A515 et la nationale N296 sont accessibles à moins de 10 km. On trouve un bassin de natation, des commerces, des boulangeries, deux supermarchés, trois boucheries-charcuteries et quatre épiceries à proximité de la maison. Enfin, le marché Place de la République anime les environs.
Son prix de vente est de 350 000 €.
Contactez notre agence (Pierre GIMENEZ : 04-42-49-27-77) pour tout renseignement sur la maison, sur les modalités de vente ou sur les démarches à suivre. Azur & Constructions Martigues est là pour vous accompagner à toutes les étapes de l'achat.
Mentions légales
Terrain proposé par un partenaire foncier selon disponibilités et autorisation de publicité au prix de 235 000 €. Hors droit d'enregistrement et frais de notaire. Terrain + Maison proposés au prix de 115 000 € (Hors branchements et raccordements, papiers peints, peintures, revêtement de sol dans les chambres. Tarif modifiable sans préavis). Etiquette énergie : A. Différents modèles disponibles pour ce terrain. Assurances et garanties du constructeur (RC professionnelle, décennale, dommage ouvrage, garantie de remboursement de l'acompte, livraison à prix et délai convenu) : https://www.azur-et-constructions.com/mentions-legales/.Agence Azur & Constructions de Martigues (13500)
- Téléphone :
- 04 42 49 27 77
- Adressse :
- Allée Charles Dullin
13500 Martigues, France
