Maison neuve à
Fos-sur-Mer
(13270) Référence :
AA2426403_1
Prix du projet : Maison avec Terrain
prix 259 900 €
- 4 pièces
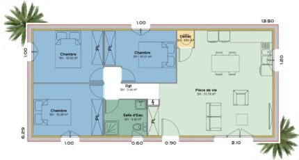
- 3 chambres
- Surface maison 71 m2
Maison T4 (71 m²) à vendre à Fos-sur-Mer
QUARTIER RECHERCHÉ - MAISON 4 PIÈCES NEUVE
À 5 km de la mer Méditerranée et à deux pas d'Arles, à vendre construite dans un quartier prisé de Fos-sur-Mer (13270), nous vous proposons cette maison de 4 pièces de plain-pied de 71 m². Son intérieur offre trois chambres, une cuisine et une salle de bains.
Le terrain du bien s'étend sur 300 m².
La maison est neuve.
Cette maison se trouve dans un secteur recherché. Des établissements scolaires de tous niveaux (de la maternelle au lycée) sont implantés à moins de 10 minutes en voiture, tout comme quatre structures d'accueil pour les enfants en bas âge à moins de 10 minutes à pied. Côté transports, il y a quatre gares à moins de 10 minutes en voiture. Les nationales N568 et N569 sont accessibles à moins de 3 km. On trouve des tennis, trois bassins de natation, deux ports de plaisance, un bowling, trois bibliothèques, des supermarchés, des commerces, des boulangeries, quatre supérettes et des poissonneries à quelques minutes. 4 marchés animent les environs.
Son prix de vente est de 259 900 €.
Prenez contact avec notre agence (Anthony ANGELI : 06-18-28-79-40) pour plus de renseignements sur la propriété, sur les modalités de vente et sur les démarches à suivre. Donnez vie à vos projets immobiliers avec Azur & Constructions Cabriès.
Mentions légales
Terrain proposé par un partenaire foncier selon disponibilités et autorisation de publicité au prix de 130 000 €. Hors droit d'enregistrement et frais de notaire. Terrain + Maison proposés au prix de 259 900 € (Hors branchements et raccordements, papiers peints, peintures, revêtement de sol dans les chambres. Tarif modifiable sans préavis). Etiquette énergie : A. Différents modèles disponibles pour ce terrain. Assurances et garanties du constructeur (RC professionnelle, décennale, dommage ouvrage, garantie de remboursement de l'acompte, livraison à prix et délai convenu) : https://www.azur-et-constructions.com/mentions-legales/.Agence Azur & Constructions de Cabriès (13480)
- Téléphone :
- 04 42 49 27 77
- Adressse :
- Expobat Villa n°13
13480 Cabriès, France
