Maison neuve à
Fos-sur-Mer
(13270) Référence :
AA2413076_1
Prix du projet : Maison avec Terrain
prix 274 890 €
- 4 pièces
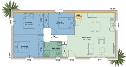
- 3 chambres
- Surface maison 71 m2
Maison T4 (71 m²) en vente à Fos-sur-Mer
EMPLACEMENT PRIVILÉGIÉ - MAISON 4 PIÈCES NEUVE
Sur le littoral méditerranéen et à 22 km d'Arles, à vendre bénéficiant d'un emplacement privilégié dans Fos-sur-Mer (13270), Azur & Constructions Cabriès vous propose cette maison de 4 pièces de plain-pied de 71 m². Elle est composée de trois chambres, d'une cuisine et d'une salle de bains.
Le terrain de la maison est de 400 m².
Cette maison est neuve.
Cette propriété est située dans un secteur attractif. Des établissements scolaires (de la maternelle au lycée) se trouvent à moins de 10 minutes en voiture, tout comme quatre structures d'accueil pour la petite enfance à moins de 10 minutes à pied. Niveau transports, il y a quatre gares à moins de 10 minutes en voiture. Les nationales N568 et N569 sont accessibles à moins de 3 km. On trouve des tennis, trois bassins de natation, deux ports de plaisance, un bowling, trois bibliothèques, des supermarchés, des commerces, des boulangeries, des épiceries et des boucheries-charcuteries dans les environs. Enfin, 4 marchés animent le quartier.
Elle est à vendre pour la somme de 274 890 €.
Prenez contact avec notre agence (ANGELI Anthony : 06-18-28-79-40) pour toute question sur la maison, sur les démarches à suivre et sur les modalités de vente.
Mentions légales
Terrain proposé par un partenaire foncier selon disponibilités et autorisation de publicité au prix de 147 500 €. Hors droit d'enregistrement et frais de notaire. Terrain + Maison proposés au prix de 274 890 € (Hors branchements et raccordements, papiers peints, peintures, revêtement de sol dans les chambres. Tarif modifiable sans préavis). Etiquette énergie : A. Différents modèles disponibles pour ce terrain. Assurances et garanties du constructeur (RC professionnelle, décennale, dommage ouvrage, garantie de remboursement de l'acompte, livraison à prix et délai convenu) : https://www.azur-et-constructions.com/mentions-legales/.Agence Azur & Constructions de Cabriès (13480)
- Téléphone :
- 04 42 49 27 77
- Adressse :
- Expobat Villa n°13
13480 Cabriès, France
