Maison neuve à
Fos-sur-Mer
(13270) Référence :
LR2384808_1
Prix du projet : Maison avec Terrain
prix 267 200 €
- 3 pièces
- 2 chambres
- Surface maison 59 m2
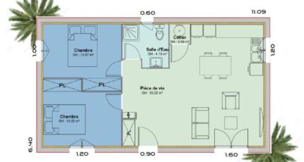
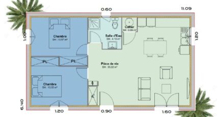
VENTE d'une maison F3 (59 m²) à Fos-sur-Mer
IDÉALEMENT SITUÉE - MAISON 3 PIÈCES NEUVE
À vendre : sur la côte méditerranéenne et à deux pas d'Arles, Azur & Constructions Cabriès vous propose, idéalement située dans Fos-sur-Mer (13270), cette maison de 3 pièces de plain-pied de 59 m² et de 400 m² de terrain.
Conçue de plain-pied, elle compte deux chambres, une cuisine et une salle de bains. Cette maison est neuve.
La maison se trouve dans un secteur attractif. Des établissements scolaires (de la maternelle au lycée) sont implantés à moins de 10 minutes en voiture, tout comme quatre structures d'accueil pour les enfants en bas âge à moins de 10 minutes à pied. Côté transports en commun, il y a quatre gares à moins de 10 minutes en voiture. Les nationales N568 et N569 sont accessibles à moins de 3 km. On trouve des tennis, trois bassins de natation, deux ports de plaisance, un bowling, trois bibliothèques, des supermarchés, des commerces, des boulangeries, des poissonneries et des boucheries-charcuteries à quelques minutes à peine. 4 marchés animent le quartier.
Elle est proposée à l'achat pour 267 200 €.
Contactez notre agence (Lucas ROCHETTE : 06-51-63-22-66) pour toute question sur la maison, sur les démarches à suivre ou sur les modalités de vente. Donnez vie à vos projets immobiliers avec Azur & Constructions Cabriès.
Mentions légales
Terrain proposé par un partenaire foncier selon disponibilités et autorisation de publicité au prix de 154 900 €. Hors droit d'enregistrement et frais de notaire. Terrain + Maison proposés au prix de 112 300 € (Hors branchements et raccordements, papiers peints, peintures, revêtement de sol dans les chambres. Tarif modifiable sans préavis). Etiquette énergie : A. Différents modèles disponibles pour ce terrain. Assurances et garanties du constructeur (RC professionnelle, décennale, dommage ouvrage, garantie de remboursement de l'acompte, livraison à prix et délai convenu) : https://www.azur-et-constructions.com/mentions-legales/.Agence Azur & Constructions de Cabriès (13480)
- Téléphone :
- 04 42 49 27 77
- Adressse :
- Expobat Villa n°13
13480 Cabriès, France
