Maison neuve à
Fos-sur-Mer
(13270) Référence :
AA2380275_1
Prix du projet : Maison avec Terrain
prix 262 900 €
- 3 pièces
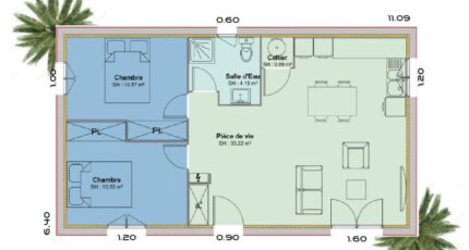
- 2 chambres
- Surface maison 59 m2
VENTE d'une maison T3 (59 m²) à Fos-sur-Mer
EMPLACEMENT PRIVILÉGIÉ - MAISON 3 PIÈCES NEUVE
À vendre : à 5 km de la mer Méditerranée et à 22 km d'Arles, notre agence Azur & Constructions Cabriès est ravie de vous présenter cette maison de 3 pièces de plain-pied de 59 m², bénéficiant d'un emplacement d'exception dans Fos-sur-Mer (13270). Conçue de plain-pied, elle comporte deux chambres, une cuisine et une salle de bains.
Le terrain de la maison est de 436 m².
La maison est neuve.
Cette maison est située dans un secteur prisé. Il y a tous les types d'établissements scolaires (maternelle, élémentaire et secondaire) à moins de 10 minutes en voiture, tout comme quatre structures d'accueil pour la petite enfance à moins de 10 minutes à pied. Niveau transports en commun, on trouve quatre gares à moins de 10 minutes en voiture. Les nationales N568 et N569 sont accessibles à moins de 3 km. Il y a des tennis, trois bassins de natation, deux ports de plaisance, un bowling, trois bibliothèques, des supermarchés, des commerces, des boulangeries, quatre supérettes et des boucheries-charcuteries dans les environs. 4 marchés animent les environs.
Elle est à vendre pour la somme de 262 900 €.
Prenez contact avec notre constructeur (ANGELI Anthony : 06-18-28-79-40) pour toute question sur la maison. Azur & Constructions Cabriès est là pour vous accompagner dans tous vos projets immobiliers.
Mentions légales
Terrain proposé par un partenaire foncier selon disponibilités et autorisation de publicité au prix de 157 000 €. Hors droit d'enregistrement et frais de notaire. Terrain + Maison proposés au prix de 262 900 € (Hors branchements et raccordements, papiers peints, peintures, revêtement de sol dans les chambres. Tarif modifiable sans préavis). Etiquette énergie : A. Différents modèles disponibles pour ce terrain. Assurances et garanties du constructeur (RC professionnelle, décennale, dommage ouvrage, garantie de remboursement de l'acompte, livraison à prix et délai convenu) : https://www.azur-et-constructions.com/mentions-legales/.Agence Azur & Constructions de Cabriès (13480)
- Téléphone :
- 04 42 49 27 77
- Adressse :
- Expobat Villa n°13
13480 Cabriès, France
