Maison neuve à
Fos-sur-Mer
(13270) Référence :
AA2364721_1
Prix du projet : Maison avec Terrain
prix 263 890 €
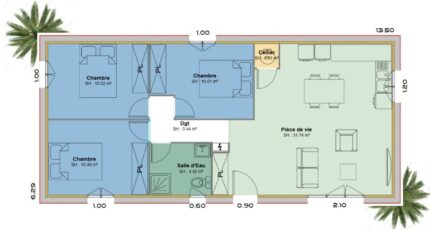
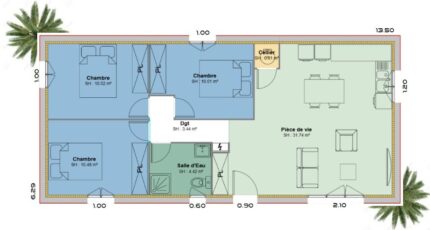
- 4 pièces
- 3 chambres
- Surface maison 71 m2
Maison de 4 pièces (71 m²) à vendre à Fos-sur-Mer
QUARTIER RECHERCHÉ - MAISON 4 PIÈCES NEUVE
En vente : située à 5 km de la côte méditerranéenne et à quelques kilomètres d'Arles, nous vous proposons cette maison de 4 pièces de plain-pied de 71 m² et de 263 m² de terrain, dans un quartier attractif de Fos-sur-Mer (13270). Elle comporte trois chambres, une cuisine et une salle de bains.
La maison est neuve.
Cette maison se trouve dans un secteur convoité. Il y a des écoles de tous niveaux à moins de 10 minutes en voiture, tout comme quatre crèches à moins de 10 minutes à pied. Niveau transports, on trouve quatre gares à moins de 10 minutes en voiture. Les nationales N568 et N569 sont accessibles à moins de 3 km. Il y a des tennis, trois bassins de natation, deux ports de plaisance, un bowling, trois bibliothèques, des supermarchés, des commerces, des boulangeries, des poissonneries et quatre supérettes dans les environs. 4 marchés animent le quartier.
Elle est proposée à l'achat pour 263 890 €.
Contactez notre agence (Anthony ANGELI : 06-18-28-79-40) pour toute question sur la propriété ou sur les démarches à suivre. Donnez vie à vos projets immobiliers avec Azur & Constructions Cabriès.
Mentions légales
Terrain proposé par un partenaire foncier selon disponibilités et autorisation de publicité au prix de 145 000 €. Hors droit d'enregistrement et frais de notaire. Terrain + Maison proposés au prix de 118 890 € (Hors branchements et raccordements, papiers peints, peintures, revêtement de sol dans les chambres. Tarif modifiable sans préavis). Etiquette énergie : A. Différents modèles disponibles pour ce terrain. Assurances et garanties du constructeur (RC professionnelle, décennale, dommage ouvrage, garantie de remboursement de l'acompte, livraison à prix et délai convenu) : https://www.azur-et-constructions.com/mentions-legales/.Agence Azur & Constructions de Cabriès (13480)
- Téléphone :
- 04 42 49 27 77
- Adressse :
- Expobat Villa n°13
13480 Cabriès, France
