Maison neuve à
Fos-sur-Mer
(13270) Référence :
AA2311860_1
Prix du projet : Maison avec Terrain
prix 279 890 €
- 4 pièces
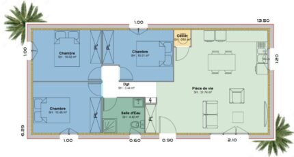
- 3 chambres
- Surface maison 71 m2
VENTE : maison T4 (71 m²) à Fos-sur-Mer
EMPLACEMENT PRIVILÉGIÉ - MAISON 4 PIÈCES NEUVE
À 5 km de la mer Méditerranée et à quelques kilomètres d'Arles, à vendre bénéficiant d'un emplacement d'exception dans Fos-sur-Mer (13270), ayez le coup de coeur pour cette maison de 4 pièces de plain-pied de 71 m².
Son intérieur propose trois chambres, une cuisine et une salle de bains. Cette maison est neuve.
Le terrain de la propriété est de 430 m².
La maison est située dans un secteur convoité. Des écoles de tous types sont implantées à moins de 10 minutes en voiture, tout comme quatre structures d'accueil pour les enfants en bas âge à moins de 10 minutes à pied. Côté transports en commun, il y a quatre gares à moins de 10 minutes en voiture. Les nationales N568 et N569 sont accessibles à moins de 3 km. On trouve des tennis, trois bassins de natation, deux ports de plaisance, un bowling, trois bibliothèques, des supermarchés, des commerces, des boulangeries, des épiceries et quatre supérettes à quelques minutes du logement. Enfin, 4 marchés animent les environs.
Elle est proposée à l'achat pour 279 890 €.
Contactez notre agence (ANGELI Anthony : 06-18-28-79-40) pour plus de renseignements sur la maison.
Mentions légales
Terrain proposé par un partenaire foncier selon disponibilités et autorisation de publicité au prix de 159 900 €. Hors droit d'enregistrement et frais de notaire. Maison proposée, avec un contrat de construction de maison individuelle, dans le cadre de la loi du 19/12/1990, au prix de 119 990 € (Hors branchements et raccordements, papiers peints, peintures, revêtement de sol dans les chambres, qui sont chiffrés dans les travaux qui restent à charge du client. Tarif modifiable sans préavis). Étiquette énergie : A. Différents modèles disponibles pour ce terrain. Assurances et garanties du constructeur comprises (RC professionnelle, décennale, dommage ouvrage).Agence Azur & Constructions de Cabriès (13480)
- Téléphone :
- 04 42 49 27 77
- Adressse :
- Expobat Villa n°13
13480 Cabriès, France
