Maison neuve à
Cotignac
(83570) Référence :
AA2364723_1
Prix du projet : Maison avec Terrain
prix 405 900 €
- 5 pièces
- 4 chambres
- Surface maison 130 m2
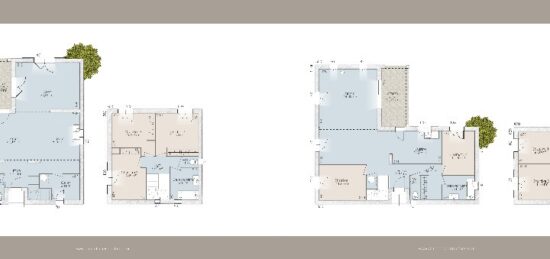
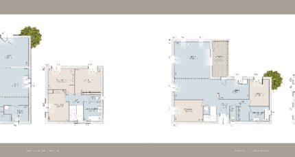
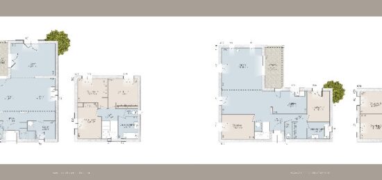
VENTE d'une maison T5 (130 m²) à Cotignac
EMPLACEMENT PRIVILÉGIÉ - MAISON 5 PIÈCES NEUVE
À vendre : à 46 km de la côte méditerranéenne et à 26 km de Draguignan, ayez le coup de coeur pour cette maison de 5 pièces de 130 m² et de 1 500 m² de terrain bénéficiant d'un emplacement d'exception dans Cotignac (83570). Elle offre quatre chambres, une cuisine et une salle de bains.
Il s'agit d'une maison de 2 niveaux. Elle est neuve.
La maison se trouve dans un quartier prisé. L'École Primaire Cotignac est implantée à moins de 10 minutes à pied, tout comme une structure d'accueil pour la petite enfance. L'autoroute A8 est accessible à 14 km. Il y a un tennis, une bibliothèque, des commerces, trois boulangeries, deux boucheries-charcuteries, un bureau de poste et deux épiceries dans les environs. Enfin, le marché Cours Gambetta a lieu chaque mardi matin.
Son prix de vente est de 405 900 €.
Contactez Anthony ANGELI (tél : 06-18-28-79-40) pour obtenir de plus amples informations sur la maison. Faites de vos projets immobiliers une réalité avec Azur & Constructions Cabriès.
Mentions légales
Terrain proposé par un partenaire foncier selon disponibilités et autorisation de publicité au prix de 160 000 €. Hors droit d'enregistrement et frais de notaire. Terrain + Maison proposés au prix de 245 900 € (Hors branchements et raccordements, papiers peints, peintures, revêtement de sol dans les chambres. Tarif modifiable sans préavis). Etiquette énergie : A. Différents modèles disponibles pour ce terrain. Assurances et garanties du constructeur (RC professionnelle, décennale, dommage ouvrage, garantie de remboursement de l'acompte, livraison à prix et délai convenu) : https://www.azur-et-constructions.com/mentions-legales/.Agence Azur & Constructions de Cabriès (13480)
- Téléphone :
- 04 42 49 27 77
- Adressse :
- Expobat Villa n°13
13480 Cabriès, France
