Maison neuve à
Cadenet
(84160) Référence :
AA2404399_1
Prix du projet : Maison avec Terrain
prix 299 890 €
- 4 pièces
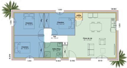
- 3 chambres
- Surface maison 71 m2
VENTE d'une maison de 4 pièces (71 m²) à Cadenet
EMPLACEMENT PRIVILÉGIÉ - MAISON 4 PIÈCES NEUVE
À vendre : à 31 km de la mer Méditerranée et à quelques kilomètres d'Aix-en-Provence, nous vous présentons cette maison de 4 pièces de plain-pied de 71 m², bénéficiant d'un emplacement d'exception dans Cadenet (84160). Elle propose trois chambres, une cuisine et une salle de bains.
Le terrain du bien est de 427 m².
La maison est neuve.
Cette maison se trouve dans un quartier recherché. Il y a l'École Maternelle du Cèdre et l'École Primaire Mélina Mercouri à moins de 10 minutes à pied et une crèche. L'autoroute A51 est accessible à 13 km. On trouve un tennis, une bibliothèque, quatre boulangeries, deux commerces, une épicerie, un bureau de poste et une boucherie-charcuterie à proximité. Enfin, le marché Place du Tambour anime les environs chaque lundi matin.
Elle est à vendre pour la somme de 299 890 €.
N'hésitez pas à prendre contact avec Anthony ANGELI (tél : 06-18-28-79-40) pour toute question sur la maison. Azur & Constructions Cabriès vous accompagne dans toutes vos démarches et à toutes les étapes de l'achat.
Mentions légales
Terrain proposé par un partenaire foncier selon disponibilités et autorisation de publicité au prix de 179 900 €. Hors droit d'enregistrement et frais de notaire. Terrain + Maison proposés au prix de 119 990 € (Hors branchements et raccordements, papiers peints, peintures, revêtement de sol dans les chambres. Tarif modifiable sans préavis). Etiquette énergie : A. Différents modèles disponibles pour ce terrain. Assurances et garanties du constructeur (RC professionnelle, décennale, dommage ouvrage, garantie de remboursement de l'acompte, livraison à prix et délai convenu) : https://www.azur-et-constructions.com/mentions-legales/.Agence Azur & Constructions de Cabriès (13480)
- Téléphone :
- 04 42 49 27 77
- Adressse :
- Expobat Villa n°13
13480 Cabriès, France
