Maison neuve à
Bevons
(04200) Référence :
DD2356573_1
Prix du projet : Maison avec Terrain
prix 244 000 €
- 4 pièces
- 3 chambres
- Surface maison 71 m2
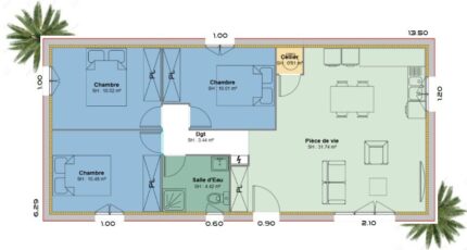
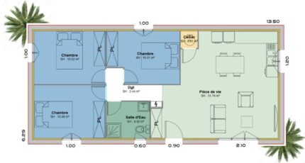
Maison F4 (71 m²) à vendre à Bevons
MAISON 4 PIÈCES NEUVE
À vendre : à Bevons (04200), nous vous présentons cette maison de 4 pièces de plain-pied de 71 m².
Conçue de plain-pied, elle propose trois chambres, une cuisine et une salle de bains. La maison est neuve.
Le terrain du bien s'étend sur 1 500 m².
Une école primaire est implantée dans le quartier. Côté transports en commun, il y a la gare Sisteron à moins de 10 minutes en voiture. On trouve un accès à l'autoroute A51 à 6 km.
Elle est proposée à l'achat pour 244 000 €.(Terrain, frais de notaire, maison)
Contactez notre agence (Daniel DEROCH : 06-09-96-38-36) pour plus d'informations sur cette maison.
Mentions légales
Terrain proposé par un partenaire foncier selon disponibilités et autorisation de publicité au prix de 105 000 €. Hors droit d'enregistrement et frais de notaire. Terrain + Maison proposés au prix de 139 000 € (Hors branchements et raccordements, papiers peints, peintures, revêtement de sol dans les chambres. Tarif modifiable sans préavis). Etiquette énergie : A. Différents modèles disponibles pour ce terrain. Assurances et garanties du constructeur (RC professionnelle, décennale, dommage ouvrage, garantie de remboursement de l'acompte, livraison à prix et délai convenu) : https://www.azur-et-constructions.com/mentions-legales/.Agence Azur & Constructions de Salon-de-Provence (13300)
- Téléphone :
- 04 42 49 27 77
- Adressse :
- 415 boulevard du Roy René
13300 Salon-de-Provence, France
