Maison neuve à
Allauch
(13190) Référence :
LR2326295_1
Prix du projet : Maison avec Terrain
prix 435 600 €
- 4 pièces
- 3 chambres
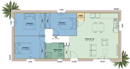
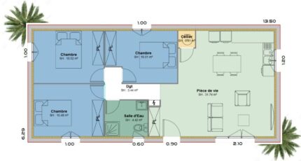
- Surface maison 71 m2
VENTE : maison F4 (71 m²) à Allauch
EMPLACEMENT PRIVILÉGIÉ - MAISON 4 PIÈCES NEUVE
En vente : à 17 km de la côte méditerranéenne, bénéficiant d'un emplacement privilégié dans Allauch (13190), venez découvrir cette maison de 4 pièces de plain-pied de 71 m².
Conçue de plain-pied, elle se divise en trois chambres, une cuisine et une salle de bains. Cette maison est neuve.
Le terrain de la propriété est de 454 m².
Cette maison est située dans un quartier prisé. On y trouve des établissements scolaires de tous niveaux. Niveau transports en commun, on trouve six gares à moins de 10 minutes en voiture. Quatre autoroutes sont accessibles à moins de 9 km. Il y a une bibliothèque, une boucherie-charcuterie et une épicerie à proximité de la maison.
Elle est proposée à l'achat pour 435 600 €.
N'hésitez pas à prendre contact avec Lucas ROCHETTE (tél : 06-51-63-22-66) pour plus d'informations sur la maison.
Mentions légales
Terrain proposé par un partenaire foncier selon disponibilités et autorisation de publicité au prix de 310 000 €. Hors droit d'enregistrement et frais de notaire. Maison proposée, avec un contrat de construction de maison individuelle, dans le cadre de la loi du 19/12/1990, au prix de 125 600 € (Hors branchements et raccordements, papiers peints, peintures, revêtement de sol dans les chambres, qui sont chiffrés dans les travaux qui restent à charge du client. Tarif modifiable sans préavis). Étiquette énergie : A. Différents modèles disponibles pour ce terrain. Assurances et garanties du constructeur comprises (RC professionnelle, décennale, dommage ouvrage).Agence Azur & Constructions de Cabriès (13480)
- Téléphone :
- 04 42 49 27 77
- Adressse :
- Expobat Villa n°13
13480 Cabriès, France
